Продается 2-комн. квартира, 54.01 м²
Россия, Ленинградская область, Гатчинский муниципальный округ, деревня Малое Верево, улица Кутышева, 9Вк7
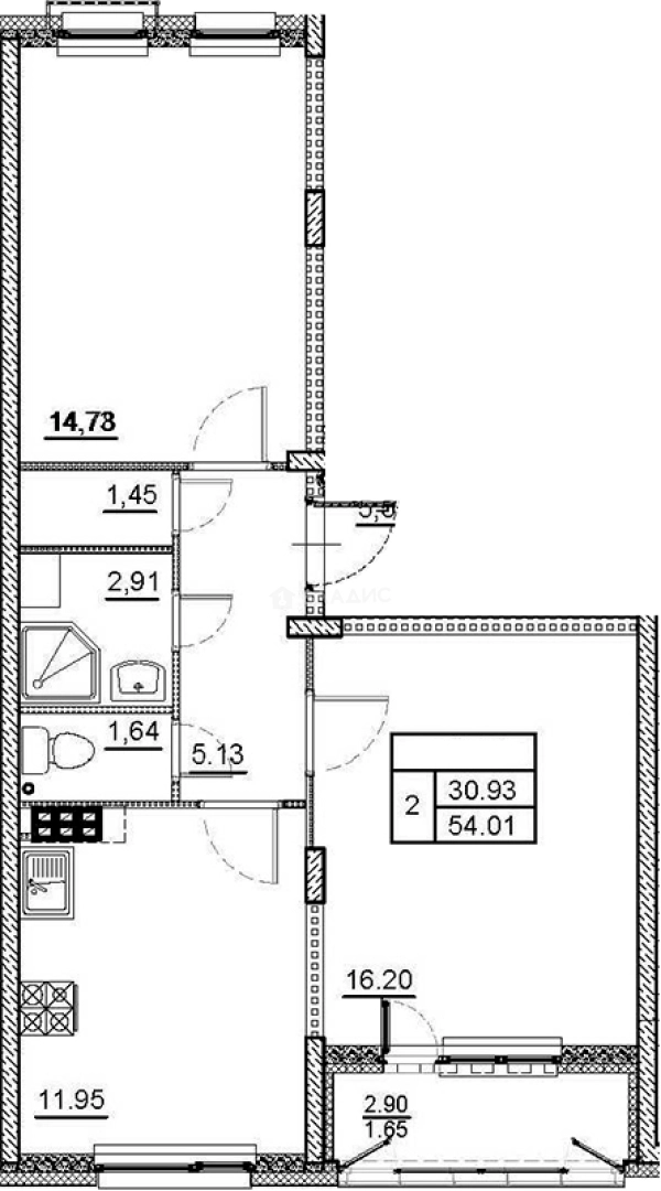
54.01 м²
Общая площадь
30.93 м²
Жилая площадь
11.95 м²
Площадь кухни
4 из 4
Этаж
Описание
О квартире
Общая площадь
54.01 м²
Жилая площадь
30.93 м²
Площадь кухни
11.95 м²
Площадь комнат
16.2+14.73 м²
Высота потолков
2.76 м
Подъезд
1
Этаж
4
Окна выходят
На улицу
О доме
Год постройки
2023
Этажность
4
Материал постройки
Кирпично-монолитный
Материал перекрытий
Монолитные
Отопление
Центральное
Парковка
Наземная
Расположение
Россия, Ленинградская область, Гатчинский муниципальный округ, деревня Малое Верево, улица Кутышева, 9Вк7
Ипотечный калькулятор
Заполните 1 анкету — получите предложения от десятков банков на специальных условиях
Программа ипотеки
Стоимость жилья, ₽
Первый взнос, ₽
Срок кредита
от 5.75%
Ставка
от 37 232 ₽
Платеж в месяц
Расчёт носит информационный характер и не является публичной офертой
Похожие объекты
Консультант по новостройкам
5 918 125 ₽
109 575 ₽/м²














