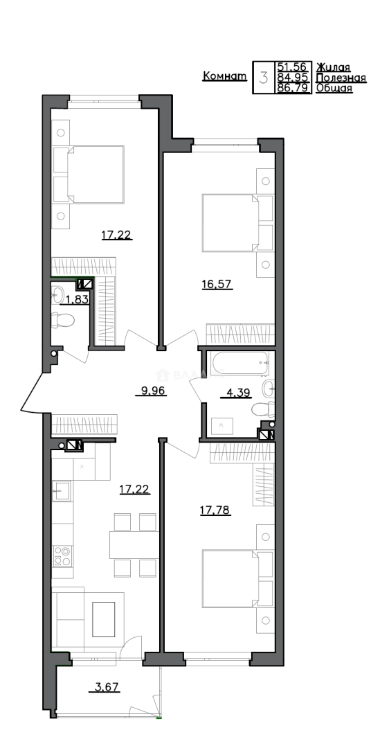
Продается 4-комн. квартира, 84.95 м²
Россия, Ленинградская область, Тосненский район, Фёдоровское городское поселение, городской посёлок Фёдоровское, Счастливая улица, 3к1
Шушары
26 мин.
84.95 м²
Общая площадь
51.57 м²
Жилая площадь
17.22 м²
Площадь кухни
5 из 5
Этаж
Описание
В ЖК «Счастье 2.0» предложено множество планировочных решений: в наличии квартиры, как классического типа, так и европланировки. У квартир на 1 этаже спроектированы открытые террасы. Они сдаются без отделки и высотой потолков 2,75 метра.
Территория комплекса закрыта от случайных прохожих, ведется видеонаблюдние. Предусмотрен ландшафтный дизайн, организована прогулочная зона. Установлены игровые и спортивные площадки. Также в состав комплекса входит детский сад, торговый центр и парковки.
Квартал «Счастье 2.0» находится в 27 км от Санкт-Петербурга в поселке Федоровское. За 15 минут транспортом можно добраться до дворцово-парковых ансамблей Пушкина и Павловска.
О квартире
Общая площадь
84.95 м²
Жилая площадь
51.57 м²
Площадь кухни
17.22 м²
Площадь комнат
17.78+17.22+16.57 м²
Высота потолков
2.75 м
Подъезд
3
Этаж
5
Окна выходят
На улицу
О доме
Год постройки
2022
Этажность
5
Материал постройки
Кирпично-монолитный
Материал перекрытий
Монолитные
Отопление
Центральное
Пассажирских лифтов
1
Парковка
Наземная
Расположение
Россия, Ленинградская область, Тосненский район, Фёдоровское городское поселение, городской посёлок Фёдоровское, Счастливая улица, 3к1
Шушары
26 мин.
Рыбацкое
27 мин.
Купчино
30 мин.
Дунайская
30 мин.
Ипотечный калькулятор
Заполните 1 анкету — получите предложения от десятков банков на специальных условиях
Программа ипотеки
Стоимость жилья, ₽
Первый взнос, ₽
Срок кредита
от 5.75%
Ставка
от 78 060 ₽
Платеж в месяц
Расчёт носит информационный характер и не является публичной офертой
Похожие объекты








4-комн. квартира, 77,3 м², 1/5 эт.








4-комн. квартира, 76,6 м², 5/5 эт.








4-комн. квартира, 85,0 м², 4/5 эт.








3-комн. квартира, 75,0 м², 1/4 эт.
Шушары
26 мин.
Консультант по новостройкам
12 408 000 ₽
146 063 ₽/м²
















