Продается 2-комн. квартира, 43.5 м²
Россия, Ленинградская область, Ломоносовский район, Виллозское городское поселение
Проспект Ветеранов
11 мин.
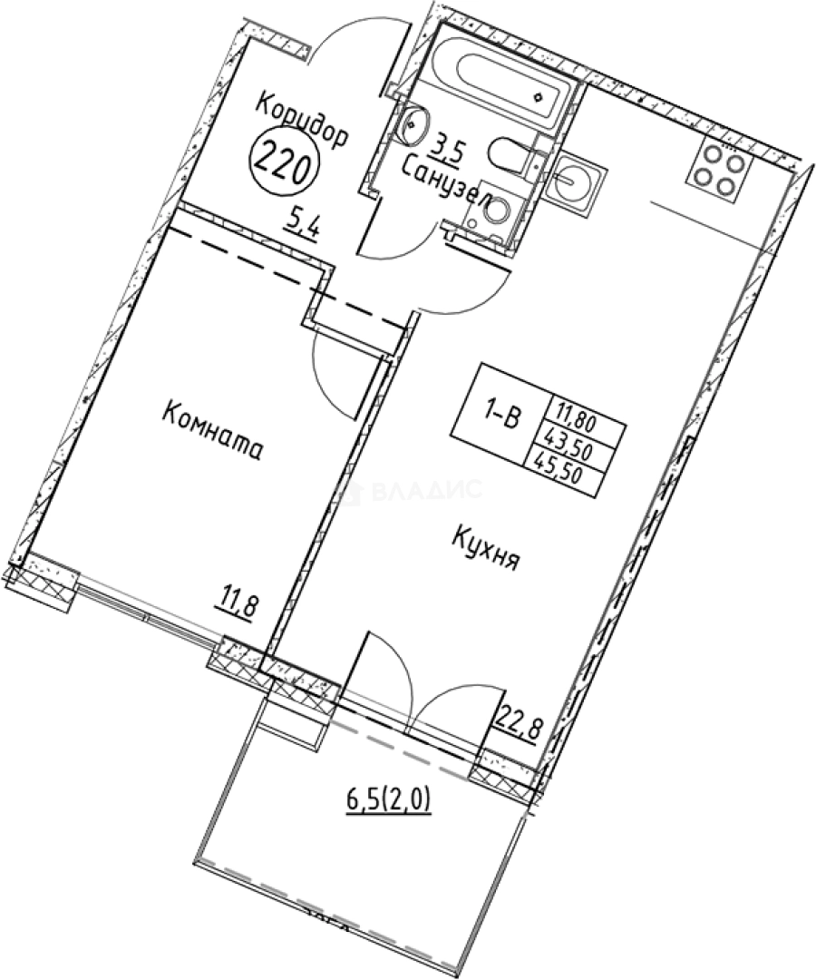
43.5 м²
Общая площадь
11.8 м²
Жилая площадь
22.8 м²
Площадь кухни
1 из 9
Этаж
Описание
В проекте представлены квартиры от студий до 4 евро. Сдаются они без отделки и с чистовой отделкой, высотой потолков от 2.7 до 4.7 метров. Имеются квартиры с террасами.
Территория комплекса благоустроена: выполнено ландшафтное озеленение, спроектированы детские и спортивные площадки, памп трек, места для отдыха и выгула собак. Для владельцев автомобилей предусмотрен 3-этажный отдельностоящий паркинг.
Проект расположен в районе с развитой инфраструктурой: рядом расположены детские сады, школа, спортивные клубы. До метро «Проспект Ветеранов» можно добраться за 15 минут на автомобиле.
О квартире
Общая площадь
43.5 м²
Жилая площадь
11.8 м²
Площадь кухни
22.8 м²
Площадь комнат
11.8 м²
Высота потолков
2.7199999999999998 м
Этаж
1
Окна выходят
На улицу
О доме
Год постройки
2027
Этажность
9
Материал постройки
Кирпично-монолитный
Материал перекрытий
Монолитные
Отопление
Центральное
Парковка
Многоуровневая
Расположение
Россия, Ленинградская область, Ломоносовский район, Виллозское городское поселение
Проспект Ветеранов
11 мин.
Ленинский проспект
13 мин.
Автово
15 мин.
Московская
17 мин.
Кировский завод
17 мин.
Звёздная
17 мин.
Парк Победы
18 мин.
Купчино
19 мин.
Ипотечный калькулятор
Заполните 1 анкету — получите предложения от десятков банков на специальных условиях
Программа ипотеки
Стоимость жилья, ₽
Первый взнос, ₽
Срок кредита
от 5.75%
Ставка
от 54 593 ₽
Платеж в месяц
Расчёт носит информационный характер и не является публичной офертой
Похожие объекты




2-комн. квартира, 39 м², 7/9 эт.
Проспект Ветеранов
11 мин.





2-комн. квартира, 40,5 м², 8/9 эт.
Проспект Ветеранов
11 мин.





2-комн. квартира, 40,5 м², 6/9 эт.
Проспект Ветеранов
11 мин.



2-комн. квартира, 39 м², 5/9 эт.
Проспект Ветеранов
11 мин.
Консультант по новостройкам
8 677 760 ₽
199 489 ₽/м²






