Продается 2-комн. квартира, 75.42 м²
Россия, Ленинградская область, Ломоносовский район, Аннинское городское поселение, городской посёлок Новоселье, Большая Балтийская улица, 10к2
Проспект Ветеранов
18 мин.
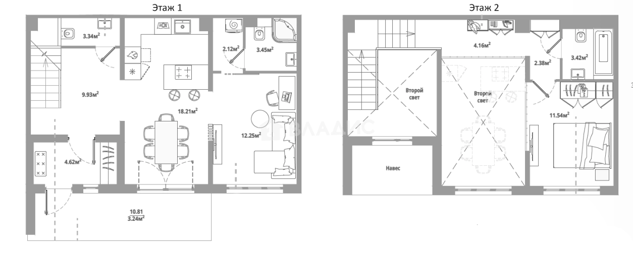
75.42 м²
Общая площадь
23.79 м²
Жилая площадь
18.21 м²
Площадь кухни
1 из 12
Этаж
Описание
Расположение и инфраструктура
Жилой комплекс расположен в окружении зелени, вблизи — леспопитомник, рядом — Шунгеровский лесопарк. В 10 минутах на автомобиле Стрельна, Финский залив и Петродворец. За 20 минут можно добраться до аэропорта, а за 45 доехать до центра города. Рядом расположена развитая сеть социальной и коммерческой инфраструктуры: школы, детские сады, магазины, каток, пекарни, амбулатория, салоны красоты и фитнес-центры.
Архитектура и благоустройство
ЖК «ЛесART» состоит из пяти 12-ти этажных домов. В строительстве применены современные многослойные стеновые панели, которые отлично сохраняют в помещениях комфортную температуру и защищают от шума.
Здесь большое количество мест для прогулок и активного отдыха. На территории запланирован детский сад, школа, спортивный стадион и современные детские площадки. Двор жилого комплекса закрыт от автомобилей.
Квартиры
Все квартиры сдаются с качественной чистовой отделкой в светлых тонах. В жилом комплексе большой выбор планировок и метражей. Здесь представлены студии с рациональным разделением пространства, классические однокомнатные и просторные двухкомнатные квартиры с мастер-спальнями.
О квартире
Общая площадь
75.42 м²
Жилая площадь
23.79 м²
Площадь кухни
18.21 м²
Площадь комнат
12.25+11.54 м²
Высота потолков
6.5 м
Этаж
1
Окна выходят
На улицу
О доме
Год постройки
2024
Этажность
12
Материал постройки
Панельный
Материал перекрытий
Ж/б плиты
Отопление
Центральное
Расположение
Россия, Ленинградская область, Ломоносовский район, Аннинское городское поселение, городской посёлок Новоселье, Большая Балтийская улица, 10к2
Проспект Ветеранов
18 мин.
Ленинский проспект
20 мин.
Автово
21 мин.
Кировский завод
22 мин.
Нарвская
25 мин.
Балтийская
27 мин.
Горный институт
28 мин.
Приморская
29 мин.
Ипотечный калькулятор
Заполните 1 анкету — получите предложения от десятков банков на специальных условиях
Программа ипотеки
Стоимость жилья, ₽
Первый взнос, ₽
Срок кредита
от 5.75%
Ставка
от 104 255 ₽
Платеж в месяц
Расчёт носит информационный характер и не является публичной офертой
Похожие объекты





4-комн. квартира, 79,4 м², 8/12 эт.
Проспект Ветеранов
18 мин.




4-комн. квартира, 84,3 м², 2/12 эт.
Проспект Ветеранов
19 мин.




4-комн. квартира, 84,3 м², 11/12 эт.
Проспект Ветеранов
19 мин.




4-комн. квартира, 84,3 м², 8/12 эт.
Проспект Ветеранов
19 мин.
Консультант по новостройкам
16 571 887 ₽
219 729 ₽/м²








