Продается 3-комн. квартира, 57.68 м²
Россия, Ленинградская область, Ломоносовский район, Аннинское городское поселение, городской посёлок Новоселье, жилой комплекс ЛесАрт
Проспект Ветеранов
18 мин.
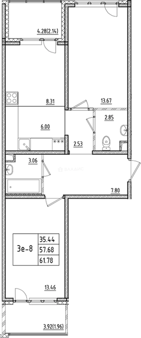
57.68 м²
Общая площадь
27.13 м²
Жилая площадь
14.31 м²
Площадь кухни
11 из 12
Этаж
Описание
В жилом комплексе предложено множество планировочных решений: в наличии квартиры, как классического типа, так и европланировки. Сдаются они с чистовой отделкой и установленной системой «Умный дом». Основная высота потолков в квартирах составляет 2,67 метра, а в зоне прихожей — 2,47 метра. Окна видовых квартир выходят на лесопитомник.
В проекте предусматривается благоустройство территории: проезды с асфальтобетонным покрытием и пешеходные тротуары, детские и спортивные площадки, места для отдыха, дорожки с набивным покрытием. На придомовой территории выполнено эффективное озеленение территории: посадка различных пород деревьев и кустарников, формирование различных «мини-ландшафтных» территорий, используя декоративные качества зеленых насаждений. Для владельцев автомобилей предусмотрена стоянка.
Жилой комплекс находится в Ломоносовском районе. Петергоф с фонтанами и Большим Петергофским дворцом, Стрельна с Константиновским дворцом находятся в радиусе 15 км от комплекса. Вблизи от ЖК расположен Шунгеровский лесопарк с большими пространствами для отдыха и спорта. Вся готовая инфраструктура находится рядом: школы, детские сады, поликлиники, магазины, кафе и рестораны. Торгово-развлекательный центр «Жемчужная плаза» и метро «Проспект Ветеранов» расположены в 15 минутах транспортом.
О квартире
Общая площадь
57.68 м²
Жилая площадь
27.13 м²
Площадь кухни
14.31 м²
Площадь комнат
13.67+13.46 м²
Высота потолков
2.67 м
Этаж
11
Окна выходят
На улицу
О доме
Год постройки
2026
Этажность
12
Материал постройки
Панельный
Материал перекрытий
Монолитные
Отопление
Центральное
Парковка
Многоуровневая
Расположение
Россия, Ленинградская область, Ломоносовский район, Аннинское городское поселение, городской посёлок Новоселье, жилой комплекс ЛесАрт
Проспект Ветеранов
18 мин.
Ленинский проспект
20 мин.
Автово
21 мин.
Кировский завод
22 мин.
Нарвская
25 мин.
Балтийская
28 мин.
Горный институт
28 мин.
Приморская
29 мин.
Ипотечный калькулятор
Заполните 1 анкету — получите предложения от десятков банков на специальных условиях
Программа ипотеки
Стоимость жилья, ₽
Первый взнос, ₽
Срок кредита
от 5.75%
Ставка
от 76 181 ₽
Платеж в месяц
Расчёт носит информационный характер и не является публичной офертой
Похожие объекты




3-комн. квартира, 60,7 м², 11/12 эт.
Проспект Ветеранов
19 мин.




3-комн. квартира, 61,5 м², 4/12 эт.
Проспект Ветеранов
19 мин.



3-комн. квартира, 61,5 м², 5/12 эт.
Проспект Ветеранов
19 мин.




3-комн. квартира, 60,7 м², 5/12 эт.
Проспект Ветеранов
19 мин.
Консультант по новостройкам
12 109 312 ₽
209 940 ₽/м²










