Продается 2-комн. квартира, 57.82 м²
Россия, Ленинградская область, Выборг, микрорайон Центральный, квартал Папула, ЖК Малая Финляндия
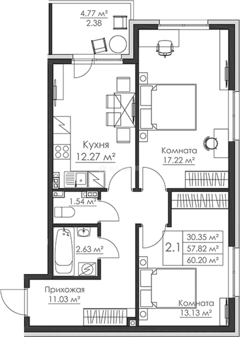
57.82 м²
Общая площадь
30.35 м²
Жилая площадь
12.27 м²
Площадь кухни
3 из 9
Этаж
Описание
В данном жилом комплексе предусмотрены видовые балконы с безрамным остеклением и возможность перепланировки квартиры. Жилые дома второй очереди расположены таким образом, что из всех квартир открывается вид на Финский залив, острова и парки. Из части квартир виден центр города и Выборгский замок.
В проекте предусмотрены благоустроенная набережная для прогулок, гостевые парковки, детские площадки, причалы для катеров, гриль-беседки, спортплощадка. Территория комплекса закрыта для посторонних и для автомобильного движения. На нижних этажах жилых корпусов расположены кладовые и коммерческие помещения. ЖК обладает своей инженерной архитектурой: собственная газовая котельная, трансформаторная подстанция, водопровод, канализация. Обслуживание жилого комплекса осуществляет собственная управляющая компания.
Жилой комплекс расположен на берегу Финского залива в г. Выборг. В пешей доступности находятся магазины, детский сад, школа, поликлиника. Рядом с жилым комплексом находится полуостров с зоной отдыха.
О квартире
Общая площадь
57.82 м²
Жилая площадь
30.35 м²
Площадь кухни
12.27 м²
Площадь комнат
17.22+13.13 м²
Высота потолков
2.89 м
Этаж
3
Окна выходят
На улицу
О доме
Год постройки
2025
Этажность
9
Материал постройки
Монолитный
Парковка
Наземная
Расположение
Россия, Ленинградская область, Выборг, микрорайон Центральный, квартал Папула, ЖК Малая Финляндия
Ипотечный калькулятор
Заполните 1 анкету — получите предложения от десятков банков на специальных условиях
Программа ипотеки
Стоимость жилья, ₽
Первый взнос, ₽
Срок кредита
от 5.75%
Ставка
от 82 036 ₽
Платеж в месяц
Расчёт носит информационный характер и не является публичной офертой
Похожие объекты











2-комн. квартира, 50,6 м², 9/9 эт.











2-комн. квартира, 58,1 м², 2/9 эт.
Консультант по новостройкам
13 040 000 ₽
225 528 ₽/м²












