Продается 2-комн. квартира, 38.25 м²
Россия, Ленинградская область, Всеволожский район, Свердловское городское поселение, деревня Новосаратовка, жилой комплекс Невская Долина, 1.1
Пролетарская
7 мин.
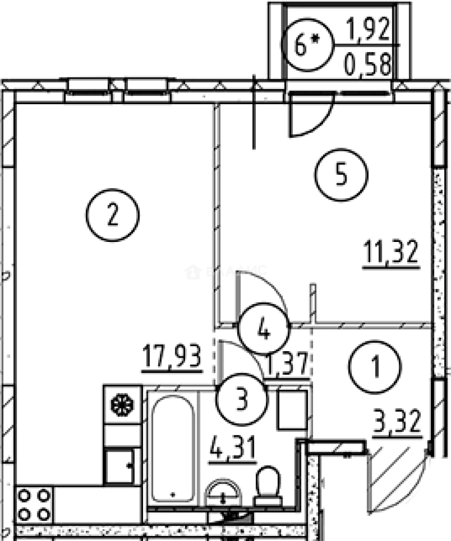
38.25 м²
Общая площадь
11.32 м²
Жилая площадь
17.93 м²
Площадь кухни
10 из 19
Этаж
Описание
Все квартиры в проекте сдаются с чистовой отделкой и меблировкой.
В проекте будет реализована концепция " Двор без машин", что сделает пространство двора тихим и безопасным для прогулок с детьми. Для автомобилистов предусмотрен отдельный многоуровневый паркинг.
Для жителей комплекса территория оборудована детскими площадками для игр, зонами для занятий спортом и бульварами для прогулок. Также имеется 2 школы и 5 детских садов.
О квартире
Общая площадь
38.25 м²
Жилая площадь
11.32 м²
Площадь кухни
17.93 м²
Площадь комнат
11.32 м²
Высота потолков
2.7 м
Этаж
10
Окна выходят
На улицу
О доме
Год постройки
2025
Этажность
19
Материал постройки
Монолитный
Материал перекрытий
Монолитные
Отопление
Центральное
Парковка
Многоуровневая
Расположение
Россия, Ленинградская область, Всеволожский район, Свердловское городское поселение, деревня Новосаратовка, жилой комплекс Невская Долина, 1.1
Пролетарская
7 мин.
Рыбацкое
7 мин.
Обухово
9 мин.
Улица Дыбенко
9 мин.
Ломоносовская
10 мин.
Проспект Большевиков
12 мин.
Елизаровская
12 мин.
Шушары
13 мин.
Ипотечный калькулятор
Заполните 1 анкету — получите предложения от десятков банков на специальных условиях
Программа ипотеки
Стоимость жилья, ₽
Первый взнос, ₽
Срок кредита
от 5.75%
Ставка
от 36 896 ₽
Платеж в месяц
Расчёт носит информационный характер и не является публичной офертой
Похожие объекты





2-комн. квартира, 41,9 м², 8/18 эт.
Пролетарская
7 мин.












2-комн. квартира, 38,8 м², 14/23 эт.
Рыбацкое
5 мин.












2-комн. квартира, 39,7 м², 7/23 эт.
Рыбацкое
5 мин.










2-комн. квартира, 39,7 м², 9/23 эт.
Рыбацкое
5 мин.
Консультант по новостройкам
5 864 826 ₽
153 329 ₽/м²








