Продается 2-комн. квартира, 52.52 м²
Россия, Ленинградская область, Ломоносовский район, Аннинское городское поселение, городской посёлок Новоселье
Проспект Ветеранов
18 мин.
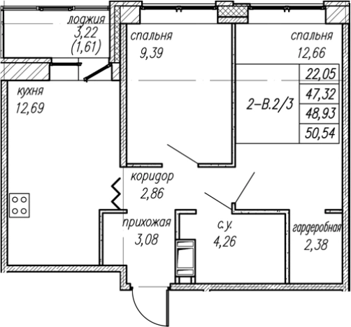
52.52 м²
Общая площадь
23.38 м²
Жилая площадь
15.84 м²
Площадь кухни
1 из 12
Этаж
Описание
В проекте предложено множество планировочных решений: в наличии квартиры, как классического типа, так и европланировки. Сдаются они с подчистовой отделкой, высотой потолков 2.7 метров и увеличенными окнами.
Территория комплекса благоустроена: выполнено ландшафтное озеленение, спроектирован прогулочный бульвар площадью более 15 000 кв.м. с вело и беговыми дорожками, площадки для активных игр и тренировок, памп трек и скейт парк. Во дворе расположен зеленый сквер с развесистыми деревьями и цветущими кустарниками. Имеется площадка для выгула собак. Для владельцев автомобилей предусмотрено два 6 этажных паркинга.
Проект располагается в зеленом экологичном районе, недалеко от Шунгеровского лесопарка. Хорошая транспортная доступность обеспечена за счет близости выезда на КАД. Поблизости исторические окрестности: Стрельна, Петергоф, Ломоносов, Финский залив. Рядом расположены детские сады, школа, аптеки, магазины. До метро «Проспект Ветеранов» можно добраться за 20 минут на автомобиле, до ЖД станции «Сергиево» — 10 минут.
О квартире
Общая площадь
52.52 м²
Жилая площадь
23.38 м²
Площадь кухни
15.84 м²
Площадь комнат
11.42+11.96 м²
Высота потолков
3.6 м
Этаж
1
Окна выходят
На улицу
О доме
Год постройки
2026
Этажность
12
Материал постройки
Кирпично-монолитный
Отопление
Центральное
Парковка
Многоуровневая
Расположение
Россия, Ленинградская область, Ломоносовский район, Аннинское городское поселение, городской посёлок Новоселье
Проспект Ветеранов
18 мин.
Ленинский проспект
20 мин.
Автово
20 мин.
Кировский завод
21 мин.
Нарвская
25 мин.
Горный институт
27 мин.
Приморская
28 мин.
Василеостровская
30 мин.
Ипотечный калькулятор
Заполните 1 анкету — получите предложения от десятков банков на специальных условиях
Программа ипотеки
Стоимость жилья, ₽
Первый взнос, ₽
Срок кредита
от 5.75%
Ставка
от 48 749 ₽
Платеж в месяц
Расчёт носит информационный характер и не является публичной офертой
Похожие объекты








2-комн. квартира, 47,4 м², 2/9 эт.
Проспект Ветеранов
15 мин.







2-комн. квартира, 47,3 м², 3/9 эт.
Проспект Ветеранов
15 мин.








2-комн. квартира, 47,3 м², 6/9 эт.
Проспект Ветеранов
15 мин.








2-комн. квартира, 47,3 м², 3/9 эт.
Проспект Ветеранов
15 мин.
Консультант по новостройкам
7 748 865 ₽
147 542 ₽/м²









