Продается 2-комн. квартира, 62.21 м²
Россия, Ленинградская область, Всеволожский район, Агалатовское сельское поселение, деревня Касимово, жилой комплекс Новокасимово, МД-24
Парнас
24 мин.
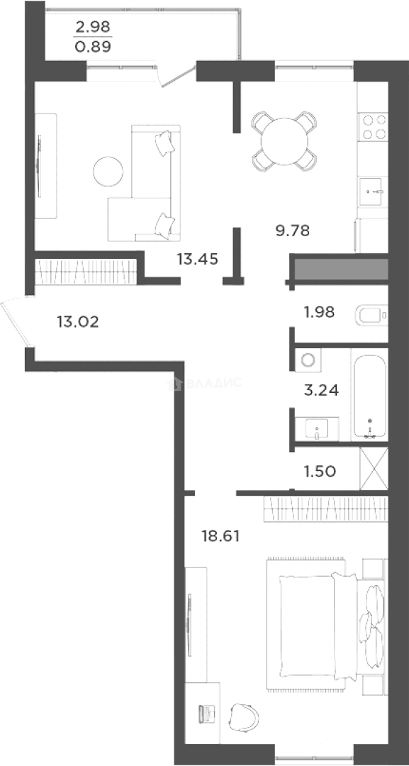
62.21 м²
Общая площадь
32.06 м²
Жилая площадь
9.78 м²
Площадь кухни
1 из 4
Этаж
Описание
В проекте предложено множество планировочных решений: в наличии квартиры, как классического типа, так и европланировки. Имеются квартиры с панорамным видом из окон. Часть квартир сдается без отделки, и часть с подчистовой, высотой потолков от 2.76 до 3 метров и увеличенными окнами.
Пространство вокруг комплекса и выходы из подъездов оборудованы современной системой видеонаблюдения и видеодомофонами. На территории расположены 2 детских сада, школа, торговый центр, спортивный комплекс, ледовая арена, медицинский центр и множество небольших магазинов формата «у дома», которые обеспечат жильцов всем необходимым.
Жилой комплекс расположен во Всеволожском районе. Метро «Парнас» находится в 25 минутах транспортом, выезд на КАД — в 20 минутах транспортом.
О квартире
Общая площадь
62.21 м²
Жилая площадь
32.06 м²
Площадь кухни
9.78 м²
Площадь комнат
13.45+18.61 м²
Высота потолков
3 м
Этаж
1
Окна выходят
На улицу
О доме
Год постройки
2024
Этажность
4
Материал постройки
Кирпично-монолитный
Материал перекрытий
Монолитные
Отопление
Центральное
Парковка
Наземная
Расположение
Россия, Ленинградская область, Всеволожский район, Агалатовское сельское поселение, деревня Касимово, жилой комплекс Новокасимово, МД-24
Парнас
24 мин.
Проспект Просвещения
26 мин.
Озерки
29 мин.
Девяткино
29 мин.
Ипотечный калькулятор
Заполните 1 анкету — получите предложения от десятков банков на специальных условиях
Программа ипотеки
Стоимость жилья, ₽
Первый взнос, ₽
Срок кредита
от 5.75%
Ставка
от 62 721 ₽
Платеж в месяц
Расчёт носит информационный характер и не является публичной офертой
Похожие объекты








3-комн. квартира, 69,6 м², 1/4 эт.
Парнас
23 мин.










2-комн. квартира, 62,3 м², 2/4 эт.
Парнас
24 мин.










3-комн. квартира, 69,4 м², 3/4 эт.
Парнас
23 мин.










2-комн. квартира, 62,3 м², 1/4 эт.
Парнас
24 мин.
Консультант по новостройкам
9 969 800 ₽
160 261 ₽/м²











