Продается 3-комн. квартира, 78.86 м²
Россия, Ленинградская область, Всеволожский район, Агалатовское сельское поселение, деревня Касимово, жилой комплекс Новокасимово, 1-й Радужный проезд, 5
Парнас
24 мин.
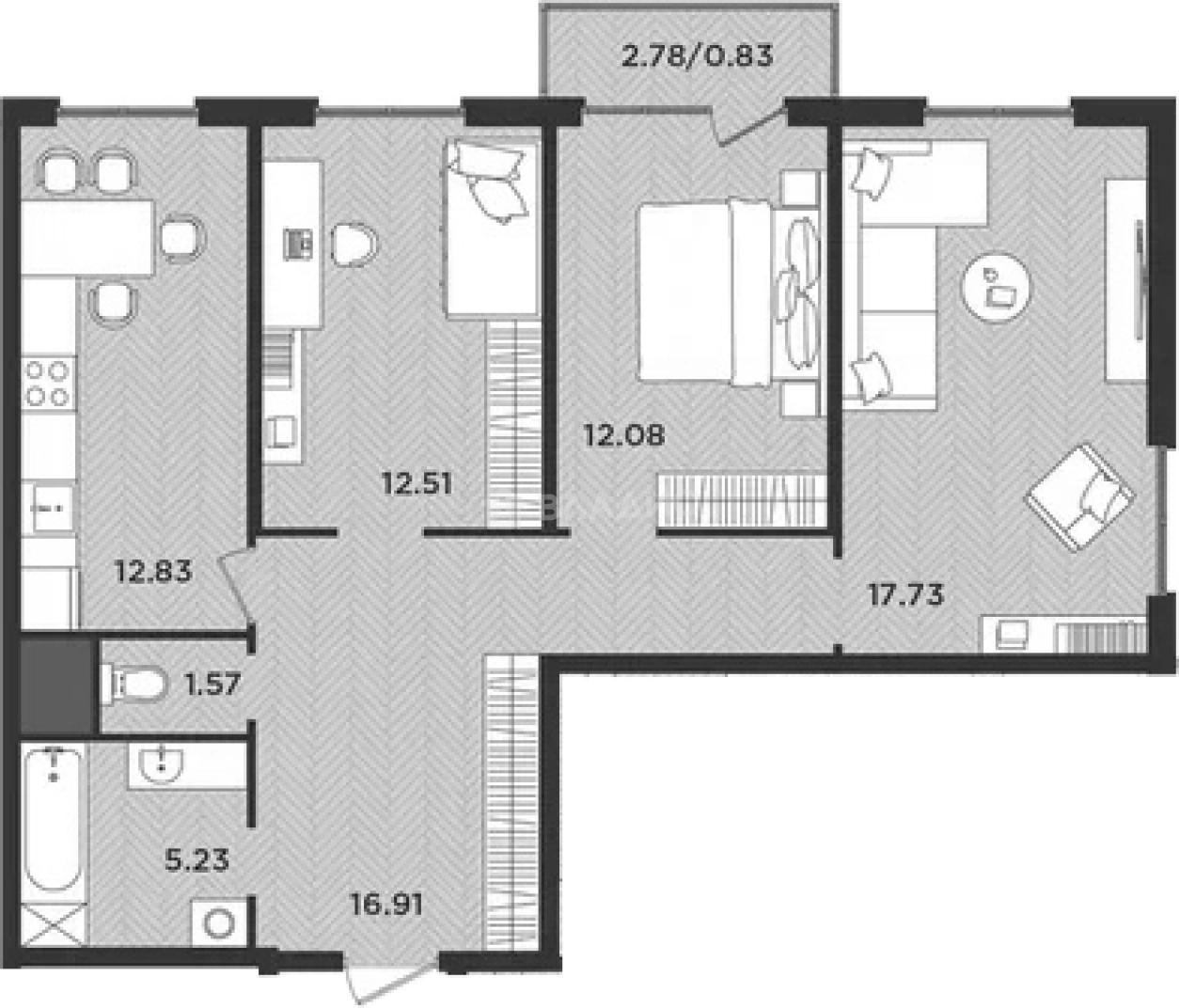
78.86 м²
Общая площадь
42.32 м²
Жилая площадь
12.83 м²
Площадь кухни
3 из 4
Этаж
Описание
В проекте предложено множество планировочных решений: в наличии квартиры, как классического типа, так и европланировки. Имеются квартиры с панорамным видом из окон. Часть квартир сдается без отделки, и часть с подчистовой, высотой потолков от 2.76 до 3 метров и увеличенными окнами.
Пространство вокруг комплекса и выходы из подъездов оборудованы современной системой видеонаблюдения и видеодомофонами. На территории расположены 2 детских сада, школа, торговый центр, спортивный комплекс, ледовая арена, медицинский центр и множество небольших магазинов формата «у дома», которые обеспечат жильцов всем необходимым.
Жилой комплекс расположен во Всеволожском районе. Метро «Парнас» находится в 25 минутах транспортом, выезд на КАД — в 20 минутах транспортом.
О квартире
Общая площадь
78.86 м²
Жилая площадь
42.32 м²
Площадь кухни
12.83 м²
Площадь комнат
12.08+17.73+12.51 м²
Высота потолков
2.7 м
Этаж
3
Окна выходят
На улицу
О доме
Год постройки
2022
Этажность
4
Материал постройки
Кирпично-монолитный
Материал перекрытий
Монолитные
Отопление
Центральное
Парковка
Наземная
Расположение
Россия, Ленинградская область, Всеволожский район, Агалатовское сельское поселение, деревня Касимово, жилой комплекс Новокасимово, 1-й Радужный проезд, 5
Парнас
24 мин.
Проспект Просвещения
26 мин.
Озерки
29 мин.
Девяткино
29 мин.
Ипотечный калькулятор
Заполните 1 анкету — получите предложения от десятков банков на специальных условиях
Программа ипотеки
Стоимость жилья, ₽
Первый взнос, ₽
Срок кредита
от 5.75%
Ставка
от 81 533 ₽
Платеж в месяц
Расчёт носит информационный характер и не является публичной офертой
Похожие объекты










3-комн. квартира, 78,9 м², 2/4 эт.
Парнас
24 мин.










3-комн. квартира, 78,8 м², 3/4 эт.
Парнас
24 мин.








4-комн. квартира, 88,3 м², 4/4 эт.
Парнас
23 мин.
Консультант по новостройкам
12 960 000 ₽
164 342 ₽/м²


















