Продается 3-комн. квартира, 57.84 м²
Россия, Ленинградская область, Всеволожский район, Бугровское городское поселение, деревня Мистолово, Малый проспект
Парнас
13 мин.
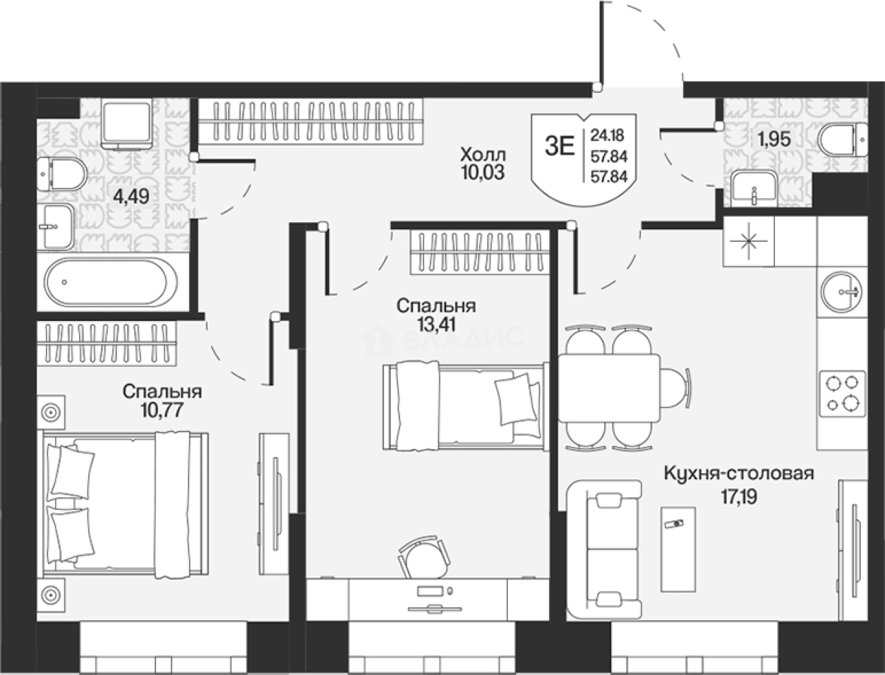
57.84 м²
Общая площадь
24.18 м²
Жилая площадь
17.19 м²
Площадь кухни
1 из 4
Этаж
Описание
В жилом комплексе представлены квартиры различных планировок, включая студии, евроформаты и 1-, 2-, 3-комнатные решения. Все квартиры сдаются с подчистовой отделкой, с использованием современных материалов и высотой потолков до 3,17 метра.
Внутри комплекса реализована концепция «Двор без машин». На территории предусмотрены детские и спортивные площадки, зеленые зоны отдыха. Для владельцев автомобилей предусмотрена парковка за пределами жилой зоны.
Комплекс расположен в деревне Мистолово во Всеволожском районе Ленинградской области. Поблизости находятся крупные торговые центры и объекты социальной инфраструктуры. В шаговой доступности планируется строительство десткого сада и школы. До метро «Парнас» можно добраться за 20 минут на транспорте.
О квартире
Общая площадь
57.84 м²
Жилая площадь
24.18 м²
Площадь кухни
17.19 м²
Площадь комнат
10.77+13.41 м²
Высота потолков
3.17 м
Этаж
1
Окна выходят
На улицу
О доме
Год постройки
2027
Этажность
4
Материал постройки
Газобетонный блок
Материал перекрытий
Монолитные
Отопление
Центральное
Парковка
Наземная
Расположение
Россия, Ленинградская область, Всеволожский район, Бугровское городское поселение, деревня Мистолово, Малый проспект
Парнас
13 мин.
Девяткино
13 мин.
Проспект Просвещения
15 мин.
Гражданский проспект
15 мин.
Озерки
18 мин.
Академическая
19 мин.
Политехническая
21 мин.
Удельная
21 мин.
Ипотечный калькулятор
Заполните 1 анкету — получите предложения от десятков банков на специальных условиях
Программа ипотеки
Стоимость жилья, ₽
Первый взнос, ₽
Срок кредита
от 5.75%
Ставка
от 78 562 ₽
Платеж в месяц
Расчёт носит информационный характер и не является публичной офертой
Похожие объекты






3-комн. квартира, 59,6 м², 1/4 эт.
Парнас
12 мин.






3-комн. квартира, 57,8 м², 1/4 эт.
Парнас
13 мин.






3-комн. квартира, 56,6 м², 4/4 эт.
Парнас
12 мин.






2-комн. квартира, 54,2 м², 3/4 эт.
Парнас
12 мин.
Консультант по новостройкам
12 487 842 ₽
215 904 ₽/м²






