Продается 1-комн. квартира, 32.34 м²
Россия, Ленинградская область, Всеволожский район, деревня Новое Девяткино, жилой комплекс Удача
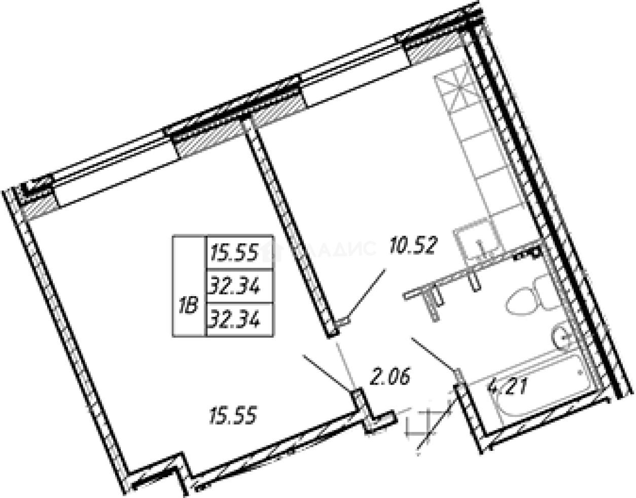
32.34 м²
Общая площадь
15.55 м²
Жилая площадь
10.52 м²
Площадь кухни
1 из 12
Этаж
Описание
В проекте «Удача» предложено множество планировочных решений: в наличии квартиры, как классического типа, так и европланировки. Сдаются они с подчистовой отделкой и высотой потолков 2,7 метра.
Территория комплекса «Удача» закрытая, на ней проведено озеленение — высажены кустарники, цветы и деревья. Придомовая территория обустроена большой детской площадкой. На другом конце комплекса расположена парковка для автомобилей.
Жилой комплекс «Удача» находится во Всеволожском районе. Инфраструктура района развита, в пешей доступности: детский сад, магазины, аптеки, мастерские, салоны красоты. В 2023 году появится новая школа на 1120 мест. До метро «Девяткино» — 15 минут пешком.
О квартире
Общая площадь
32.34 м²
Жилая площадь
15.55 м²
Площадь кухни
10.52 м²
Площадь комнат
15.55 м²
Высота потолков
2.7 м
Подъезд
3
Этаж
1
Окна выходят
На улицу
О доме
Год постройки
2024
Этажность
12
Материал постройки
Кирпично-монолитный
Материал перекрытий
Монолитные
Отопление
Центральное
Пассажирских лифтов
1
Грузовых лифтов
1
Парковка
Наземная
Расположение
Россия, Ленинградская область, Всеволожский район, деревня Новое Девяткино, жилой комплекс Удача
Ипотечный калькулятор
Заполните 1 анкету — получите предложения от десятков банков на специальных условиях
Программа ипотеки
Стоимость жилья, ₽
Первый взнос, ₽
Срок кредита
от 5.75%
Ставка
от 32 817 ₽
Платеж в месяц
Расчёт носит информационный характер и не является публичной офертой
Похожие объекты





Студия, 28,8 м², 8/18 эт.
Девяткино
30 мин.




Студия, 30,1 м², 2/18 эт.
Девяткино
30 мин.



Студия, 28,2 м², 15/22 эт.
Девяткино
23 мин.


Студия, 28,3 м², 7/22 эт.
Девяткино
23 мин.
Консультант по новостройкам
5 216 400 ₽
161 299 ₽/м²






