Подберём квартиру под ваш запрос и бюджет

Учитываем район, метраж, этаж и цели покупки. Покажем только подходящие варианты

Подберём надёжную новостройку под ваш бюджет

Учитываем локацию, срок сдачи и цели покупки — от жизни до инвестиций

Найдём дом, дачу или участок под ваши задачи

Расскажем, где лучше купить, что построить и как не переплатить

    Поможем купить или продать коммерческую недвижимость

    Подберём площадку под ваш бизнес или найдём покупателя на объект

    Поможем сдать или найти жильё в аренду без хлопот

    Найдём надёжных арендаторов или подберём подходящий вариант под ваш запрос

    Всё для быстрой и безопасной сделки — в одном месте

    Подбор ипотеки, страхование, продажа под ключ — без лишних хлопот

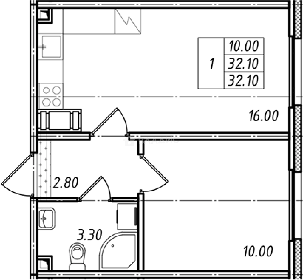
    Продается 2-комн. квартира, 32.1  м²

    Россия, Ленинградская область, Всеволожское городское поселение, посёлок Ковалёво, жилой комплекс ЛСР Ржевский парк

    Проспект Большевиков

    13 мин.

    32.1 м²

    Общая площадь

    10 м²

    Жилая площадь

    16 м²

    Площадь кухни

    12 из 16

    Этаж

    Описание

    Жилой комплекс включает в себя несколько десятков домов высотой от 9 до 16 этажей. В оформлении фасадов используется штукатурка. Сквозные парадные от уровня земли позволяют попасть в дом с обеих сторон и упрощают вход для маломобильных жителей. На первом этаже предусмотрена колясочная, а у парадной есть велопарковка.

    В жилом комплексе предложено множество планировочных решений: в наличии квартиры, как классического типа, так и европланировки. Трубы отопления и водоснабжения, скрытые в стяжке пола, сохраняют эстетику пространства, а установленные клапаны инфильтрации — чистоту и свежесть воздуха. Квартиры сдаются уже с чистовой отделкой и высотой потолков 2,55 метра.

    На территории жилого комплекса спроектированы велодорожки, наземные паркинги и гостевые автопарковки. Во дворе, закрытом от машин, находятся стильные зоны отдыха, современные детские и спортивные площадки. Ландшафт благоустроен по новому стандарту ЛСР: газон, крупномеры и многолетние кустарники. Безопасность в жилом комплексе обеспечивают камеры видеонаблюдения. В домах установлена пожарная сигнализация, датчики дыма и система пожаротушения на каждом этаже, а на территории организована безбарьерная среда.

    Жилой комплекс расположен во Всеволожском районе. В пешей доступности от комплекса находится железнодорожная станция «Ковалево». Ближайшие крупные торговые центры «Охта Молл» и «Мега Дыбенко» — в 30 минутах транспортом. 20 минут необходимо, чтобы доехать до Ржевского лесопарка, 30 минут — до Колтушских высот с экотропой, 50 минут — до Ладожского озера. В перспективе до жилого комплекса планируется продлить автобусный маршрут, вместе с продолжением Ирииновского проспекта город обещает построить развязку с КАД.

    ID объекта: 1854440
    Обновлено 13 октября

    О квартире

    Общая площадь

    32.1 м²

    Жилая площадь

    10 м²

    Площадь кухни

    16 м²

    Площадь комнат

    10 м²

    Высота потолков

    2.55 м

    Этаж

    12

    Окна выходят

    На улицу

    О доме

    Год постройки

    2025

    Этажность

    16

    Материал постройки

    Панельный

    Отопление

    Центральное

    Парковка

    Многоуровневая

    Расположение

    Россия, Ленинградская область, Всеволожское городское поселение, посёлок Ковалёво, жилой комплекс ЛСР Ржевский парк

    Проспект Большевиков

    13 мин.

    Ладожская

    14 мин.

    Улица Дыбенко

    14 мин.

    Новочеркасская

    16 мин.

    Академическая

    16 мин.

    Гражданский проспект

    16 мин.

    Девяткино

    17 мин.

    Площадь Мужества

    18 мин.

    Ипотечный калькулятор

    Заполните 1 анкету — получите предложения от десятков банков на специальных условиях

    Программа ипотеки

    Семейная ипотека (от 5,75%)

    Стоимость жилья, ₽

    Первый взнос, ₽

    Срок кредита

    от 5.75%

    Ставка

    от 31 534 ₽

    Платеж в месяц

    Расчёт носит информационный характер и не является публичной офертой

    Похожие объекты

    . Вариант № 7838431, 0, площадь - 30.7 квм, цена 5435760 рублей
    . Вариант № 7838431, 1, площадь - 30.7 квм, цена 5435760 рублей
    . Вариант № 7838431, 2, площадь - 30.7 квм, цена 5435760 рублей
    . Вариант № 7838431, 3, площадь - 30.7 квм, цена 5435760 рублей
    . Вариант № 7838431, 4, площадь - 30.7 квм, цена 5435760 рублей
    . Вариант № 7838431, 5, площадь - 30.7 квм, цена 5435760 рублей
    1 из 6
    5 435 760 ₽

    Студия, 30,7 м², 4/12 эт.

    Проспект Большевиков

    11 мин.

    Ленинградская область, Всеволожский район, Заневское городское поселение, городской посёлок Янино-1, жилой комплекс Янинский Лес
    . Вариант № 7599977, 0, площадь - 31.3 квм, цена 4939014 рублей
    . Вариант № 7599977, 1, площадь - 31.3 квм, цена 4939014 рублей
    . Вариант № 7599977, 2, площадь - 31.3 квм, цена 4939014 рублей
    1 из 3
    4 939 014 ₽

    2-комн. квартира, 31,3 м², 10/16 эт.

    Проспект Большевиков

    13 мин.

    Ленинградская область, Всеволожское городское поселение, посёлок Ковалёво
    . Вариант № 7598748, 0, площадь - 32.9 квм, цена 5120325 рублей
    . Вариант № 7598748, 1, площадь - 32.9 квм, цена 5120325 рублей
    . Вариант № 7598748, 2, площадь - 32.9 квм, цена 5120325 рублей
    . Вариант № 7598748, 3, площадь - 32.9 квм, цена 5120325 рублей
    . Вариант № 7598748, 4, площадь - 32.9 квм, цена 5120325 рублей
    . Вариант № 7598748, 5, площадь - 32.9 квм, цена 5120325 рублей
    . Вариант № 7598748, 6, площадь - 32.9 квм, цена 5120325 рублей
    1 из 7
    5 120 325 ₽

    2-комн. квартира, 32,9 м², 15/16 эт.

    Проспект Большевиков

    13 мин.

    Ленинградская область, Всеволожское городское поселение, посёлок Ковалёво, жилой комплекс ЛСР Ржевский парк
    . Вариант № 7599724, 0, площадь - 32.8 квм, цена 5104762 рублей
    . Вариант № 7599724, 1, площадь - 32.8 квм, цена 5104762 рублей
    . Вариант № 7599724, 2, площадь - 32.8 квм, цена 5104762 рублей
    . Вариант № 7599724, 3, площадь - 32.8 квм, цена 5104762 рублей
    . Вариант № 7599724, 4, площадь - 32.8 квм, цена 5104762 рублей
    . Вариант № 7599724, 5, площадь - 32.8 квм, цена 5104762 рублей
    . Вариант № 7599724, 6, площадь - 32.8 квм, цена 5104762 рублей
    1 из 7
    5 104 762 ₽

    2-комн. квартира, 32,8 м², 12/16 эт.

    Проспект Большевиков

    13 мин.

    Ленинградская область, Всеволожское городское поселение, посёлок Ковалёво
    . Вариант № 7599031, 0, площадь - 32.1 квм, цена 5012350 рублей
    . Вариант № 7599031, 1, площадь - 32.1 квм, цена 5012350 рублей
    . Вариант № 7599031, 2, площадь - 32.1 квм, цена 5012350 рублей
    . Вариант № 7599031, 3, площадь - 32.1 квм, цена 5012350 рублей
    . Вариант № 7599031, 4, площадь - 32.1 квм, цена 5012350 рублей
    . Вариант № 7599031, 5, площадь - 32.1 квм, цена 5012350 рублей
    . Вариант № 7599031, 6, площадь - 32.1 квм, цена 5012350 рублей
    1 из 7
    5 012 350 ₽

    2-комн. квартира, 32,1 м², 11/16 эт.

    Проспект Большевиков

    13 мин.

    Ленинградская область, Всеволожское городское поселение, посёлок Ковалёво, жилой комплекс ЛСР Ржевский парк
    . Вариант № 7599060, 0, площадь - 32.1 квм, цена 5012350 рублей
    . Вариант № 7599060, 1, площадь - 32.1 квм, цена 5012350 рублей
    . Вариант № 7599060, 2, площадь - 32.1 квм, цена 5012350 рублей
    . Вариант № 7599060, 3, площадь - 32.1 квм, цена 5012350 рублей
    . Вариант № 7599060, 4, площадь - 32.1 квм, цена 5012350 рублей
    . Вариант № 7599060, 5, площадь - 32.1 квм, цена 5012350 рублей
    . Вариант № 7599060, 6, площадь - 32.1 квм, цена 5012350 рублей
    1 из 7
    5 012 350 ₽

    2-комн. квартира, 32,1 м², 12/16 эт.

    Проспект Большевиков

    13 мин.

    Ленинградская область, Всеволожское городское поселение, посёлок Ковалёво, жилой комплекс ЛСР Ржевский парк
    5 012 350 ₽
    Консультант по новостройкам

    Консультант по новостройкам

    5 012 350 ₽

    156 148 ₽/м²