Продается 1-комн. квартира, 38.06 м²
Россия, Ленинградская область, Всеволожский район, Агалатовское сельское поселение, деревня Скотное, Рождественская улица
Парнас
19 мин.
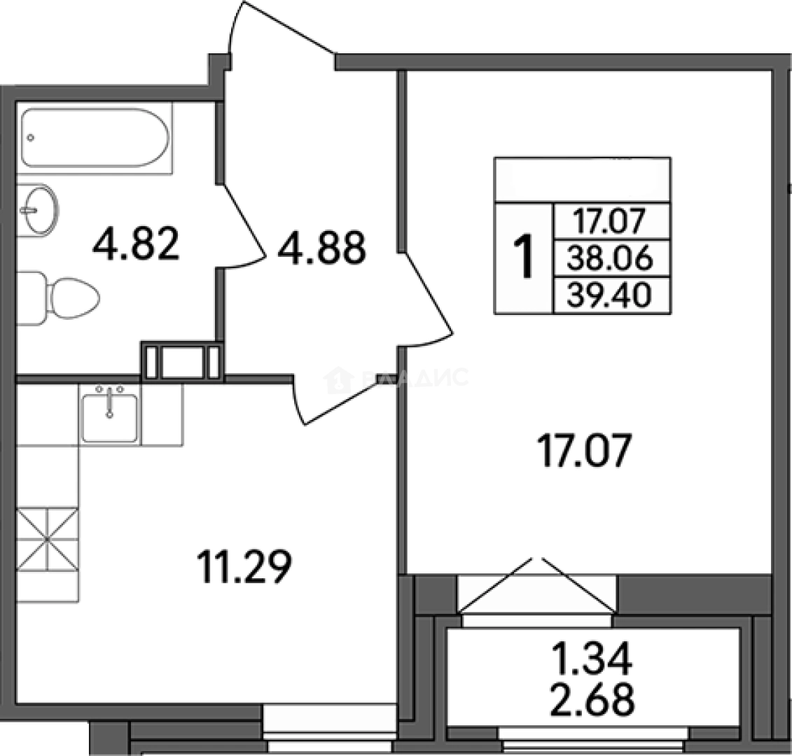
38.06 м²
Общая площадь
17.07 м²
Жилая площадь
11.29 м²
Площадь кухни
6 из 8
Этаж
Описание
На территории комплекса будут устроены детские площадки и зоны для занятий спортом, для благоустройства двора применены современные тренды ландшафтного дизайна .
Для владельцев автомобилей и гостей предусмотрена парковка.
О квартире
Общая площадь
38.06 м²
Жилая площадь
17.07 м²
Площадь кухни
11.29 м²
Площадь комнат
17.07 м²
Высота потолков
2.75 м
Этаж
6
Окна выходят
На улицу
О доме
Год постройки
2025
Этажность
8
Материал постройки
Кирпично-монолитный
Материал перекрытий
Монолитные
Отопление
Центральное
Парковка
Наземная
Расположение
Россия, Ленинградская область, Всеволожский район, Агалатовское сельское поселение, деревня Скотное, Рождественская улица
Парнас
19 мин.
Проспект Просвещения
22 мин.
Девяткино
23 мин.
Озерки
25 мин.
Гражданский проспект
25 мин.
Удельная
28 мин.
Академическая
29 мин.
Политехническая
29 мин.
Ипотечный калькулятор
Заполните 1 анкету — получите предложения от десятков банков на специальных условиях
Программа ипотеки
Стоимость жилья, ₽
Первый взнос, ₽
Срок кредита
от 5.75%
Ставка
от 32 967 ₽
Платеж в месяц
Расчёт носит информационный характер и не является публичной офертой
Похожие объекты







1-комн. квартира, 35,2 м², 3/8 эт.
Парнас
19 мин.







1-комн. квартира, 34,8 м², 7/8 эт.
Парнас
19 мин.







1-комн. квартира, 39,0 м², 8/8 эт.
Парнас
19 мин.







1-комн. квартира, 39,0 м², 6/8 эт.
Парнас
19 мин.
Консультант по новостройкам
5 240 200 ₽
137 683 ₽/м²








