Продается Студия, 22.37 м²
Россия, Ленинградская область, Всеволожский район, городской посёлок имени Свердлова, жилой комплекс Рубеж
Рыбацкое
12 мин.
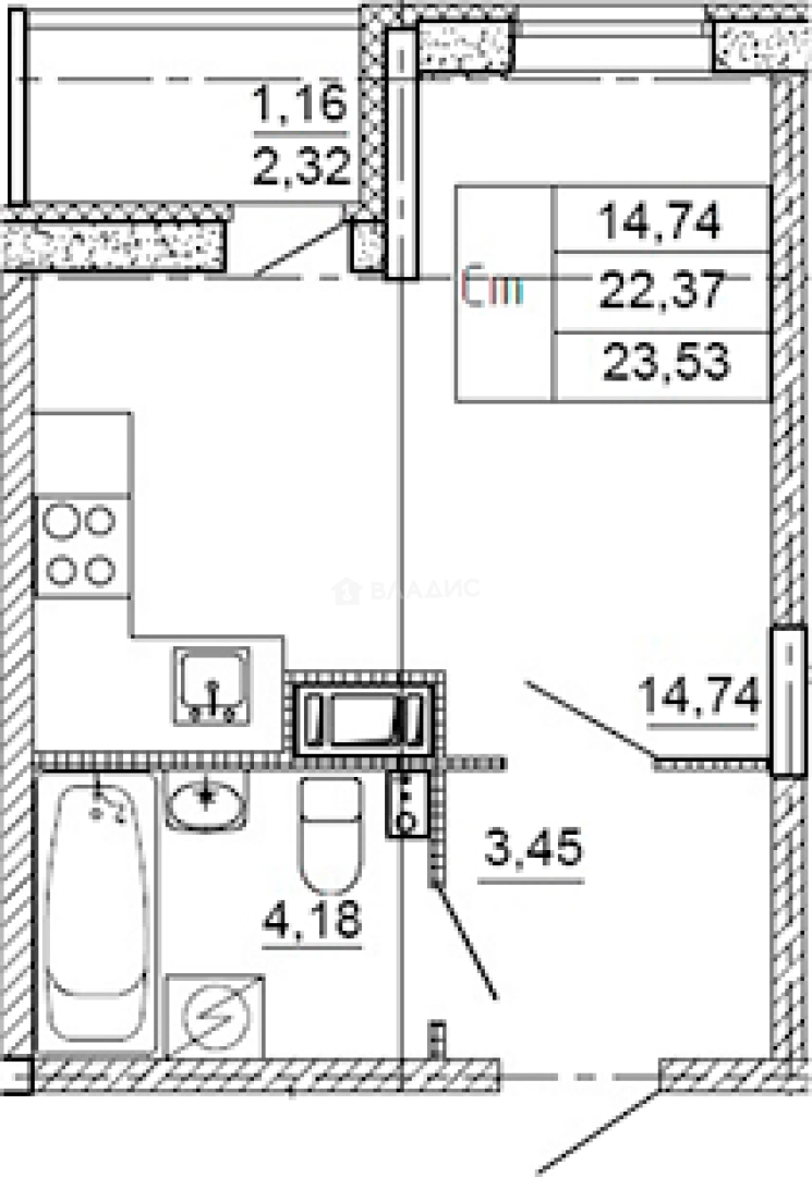
22.37 м²
Общая площадь
14.74 м²
Жилая площадь
7 из 11
Этаж
Описание
В жилом комплексе предложены как классические планировки квартир, так и европланировки от студий до 2 комнат. Они сдаются с чистовой отделкой по договору дарения.
На территории комплекса находятся детские игровые площадки и зоны отдыха, а в пешей доступности — детский сад, школа, досуговый центр, поликлиника и сетевые магазины. На 1 этаже расположен встроенно-пристроенный физкультурно-оздоровительный комплекс.
Жилой комплекс расположен во Всеволожском районе с развитой инфраструктурой и сетью общественного транспорта. В пешей доступности от дома находится набережная реки Невы и Невский лесопарк с обширной территорией для прогулок и активного времяпрепровождения. Метро «Ломоносовская» находится в 20 минутах транспортом и 10 км до выезда на КАД.
О квартире
Общая площадь
22.37 м²
Жилая площадь
14.74 м²
Площадь комнат
14.74 м²
Высота потолков
2.6 м
Этаж
7
Окна выходят
На улицу
О доме
Год постройки
2025
Этажность
11
Материал постройки
Монолитный
Материал перекрытий
Монолитные
Отопление
Центральное
Расположение
Россия, Ленинградская область, Всеволожский район, городской посёлок имени Свердлова, жилой комплекс Рубеж
Рыбацкое
12 мин.
Обухово
17 мин.
Шушары
18 мин.
Пролетарская
18 мин.
Дунайская
20 мин.
Ломоносовская
21 мин.
Улица Дыбенко
23 мин.
Проспект Славы
23 мин.
Ипотечный калькулятор
Заполните 1 анкету — получите предложения от десятков банков на специальных условиях
Программа ипотеки
Стоимость жилья, ₽
Первый взнос, ₽
Срок кредита
от 5.75%
Ставка
от 23 228 ₽
Платеж в месяц
Расчёт носит информационный характер и не является публичной офертой
Похожие объекты





Студия, 22,3 м², 5/11 эт.
Рыбацкое
12 мин.





Студия, 21,7 м², 5/11 эт.
Рыбацкое
12 мин.





Студия, 21,7 м², 10/11 эт.
Рыбацкое
12 мин.





Студия, 22,4 м², 7/11 эт.
Рыбацкое
12 мин.
Консультант по новостройкам
3 692 150 ₽
165 050 ₽/м²






