Продается Студия, 21.95 м²
Россия, Ленинградская область, Всеволожский район, деревня Новое Девяткино, жилой комплекс Удача
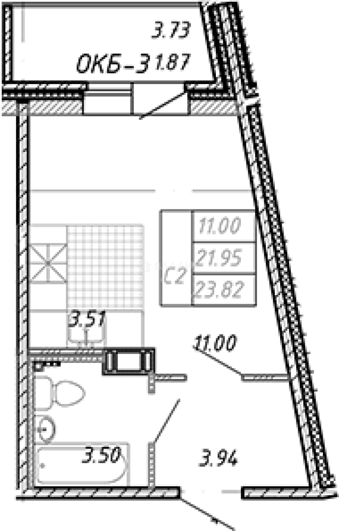
21.95 м²
Общая площадь
14.51 м²
Жилая площадь
5 из 12
Этаж
Описание
В проекте «Удача» предложено множество планировочных решений: в наличии квартиры, как классического типа, так и европланировки. Сдаются они с подчистовой отделкой и высотой потолков 2,7 метра.
Территория комплекса «Удача» закрытая, на ней проведено озеленение — высажены кустарники, цветы и деревья. Придомовая территория обустроена большой детской площадкой. На другом конце комплекса расположена парковка для автомобилей.
Жилой комплекс «Удача» находится во Всеволожском районе. Инфраструктура района развита, в пешей доступности: детский сад, магазины, аптеки, мастерские, салоны красоты. В 2023 году появится новая школа на 1120 мест. До метро «Девяткино» — 15 минут пешком.
О квартире
Общая площадь
21.95 м²
Жилая площадь
14.51 м²
Площадь комнат
14.51 м²
Высота потолков
2.7 м
Подъезд
3
Этаж
5
Окна выходят
На улицу
О доме
Год постройки
2024
Этажность
12
Материал постройки
Кирпично-монолитный
Материал перекрытий
Монолитные
Отопление
Центральное
Пассажирских лифтов
1
Грузовых лифтов
1
Парковка
Наземная
Расположение
Россия, Ленинградская область, Всеволожский район, деревня Новое Девяткино, жилой комплекс Удача
Ипотечный калькулятор
Заполните 1 анкету — получите предложения от десятков банков на специальных условиях
Программа ипотеки
Стоимость жилья, ₽
Первый взнос, ₽
Срок кредита
от 5.75%
Ставка
от 25 429 ₽
Платеж в месяц
Расчёт носит информационный характер и не является публичной офертой
Похожие объекты
Консультант по новостройкам
4 042 000 ₽
184 146 ₽/м²














