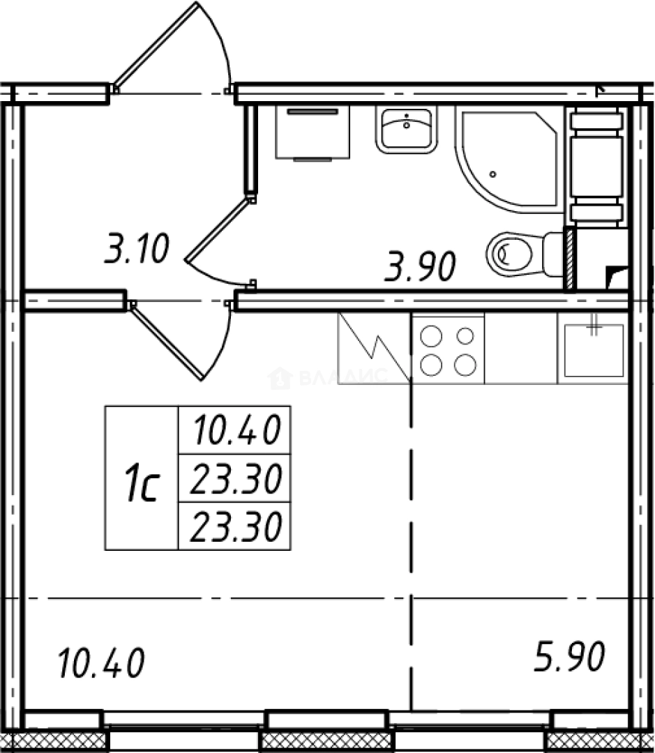
Продается Студия, 23 м²
Россия, Ленинградская область, Всеволожское городское поселение, посёлок Ковалёво
23 м²
Общая площадь
16.3 м²
Жилая площадь
14 из 16
Этаж
Описание
В ЖК «Ржевский парк» предложено множество планировочных решений: в наличии квартиры, как классического типа, так и европланировки. Трубы отопления и водоснабжения, скрытые в стяжке пола, сохраняют эстетику пространства, а установленные клапаны инфильтрации — чистоту и свежесть воздуха. Квартиры сдаются уже с чистовой отделкой и высотой потолков 2,55 метра.
На территории ЖК «Ржевский парк» спроектированы велодорожки, наземные паркинги и гостевые автопарковки. Во дворе, закрытом от машин, находятся стильные зоны отдыха, современные детские и спортивные площадки. Ландшафт благоустроен по новому стандарту ЛСР: газон, крупномеры и многолетние кустарники. Безопасность в жилом комплексе обеспечивают камеры видеонаблюдения. В домах установлена пожарная сигнализация, датчики дыма и система пожаротушения на каждом этаже, а на территории организована безбарьерная среда.
ЖК «Ржевский парк» расположен во Всеволожском районе. В пешей доступности от комплекса находится железнодорожная станция «Ковалево». Ближайшие крупные торговые центры «Охта Молл» и «Мега Дыбенко» — в 30 минутах транспортом. 20 минут необходимо, чтобы доехать до Ржевского лесопарка, 30 минут — до Колтушских высот с экотропой, 50 минут — до Ладожского озера. В перспективе до жилого комплекса планируется продлить автобусный маршрут, вместе с продолжением Ирииновского проспекта город обещает построить развязку с КАД.
О квартире
Общая площадь
23 м²
Жилая площадь
16.3 м²
Площадь комнат
16.3 м²
Высота потолков
2.55 м
Подъезд
2
Этаж
14
Окна выходят
На улицу
О доме
Год постройки
2024
Этажность
16
Материал постройки
Панельный
Материал перекрытий
Монолитные
Отопление
Центральное
Пассажирских лифтов
1
Грузовых лифтов
1
Парковка
Многоуровневая
Похожие объекты


Студия, 23,9 м², 13/16 эт.
Проспект Большевиков
13 мин.


Студия, 21,6 м², 11/16 эт.


Студия, 24 м², 11/16 эт.
Проспект Большевиков
13 мин.


Студия, 24,2 м², 9/16 эт.
Проспект Большевиков
13 мин.
4 386 100 ₽
190 700 ₽/м²






