Продается 3-комн. квартира, 65.86 м²
Россия, Ленинградская область, Всеволожский район, Бугры, Гаражный проезд, 29
Девяткино
4 мин.
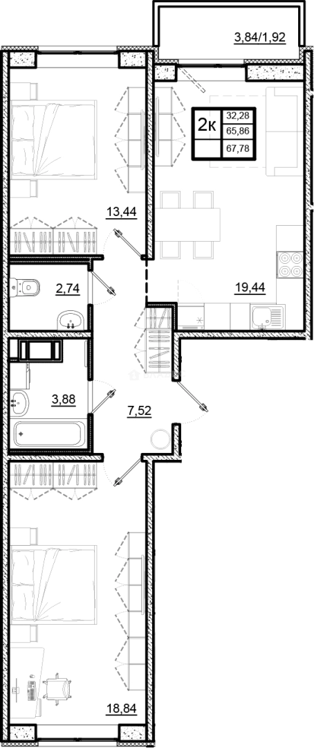
65.86 м²
Общая площадь
32.28 м²
Жилая площадь
19.44 м²
Площадь кухни
9 из 9
Этаж
Описание
В ЖК представлено множество планировочных решений, от студий до европланировок. Сдаются они с чистовой отделкой, стандартными окнами и высотой потолков 2,7 метра.
На территории ЖК предусмотрены детские и спортивные площадки. Во дворе, свободном от машин, обустроены зоны для отдыха. На первых этажах здания расположены коммерческие помещения. Для владельцев автомобилей предусмотрена стоянка.
Жилой комплекс расположен во Всеволожском районе. В 5 минутах транспортом расположены крупные торгово-развлекательные центры: «Северный молл», «Гранд-Каньон», а также ТРЦ «МЕГА Парнас». В пешей доступности работают продуктовые магазины, отделения почты и банков. Станции метро «Девяткино» и «Парнас» расположены в 20 минутах транспортом.
О квартире
Общая площадь
65.86 м²
Жилая площадь
32.28 м²
Площадь кухни
19.44 м²
Площадь комнат
13.44+18.84 м²
Высота потолков
2.7 м
Этаж
9
Окна выходят
На улицу
О доме
Год постройки
2025
Этажность
9
Материал постройки
Кирпично-монолитный
Материал перекрытий
Монолитные
Отопление
Центральное
Расположение
Россия, Ленинградская область, Всеволожский район, Бугры, Гаражный проезд, 29
Девяткино
4 мин.
Гражданский проспект
6 мин.
Парнас
7 мин.
Проспект Просвещения
8 мин.
Академическая
10 мин.
Озерки
10 мин.
Политехническая
12 мин.
Удельная
13 мин.
Ипотечный калькулятор
Заполните 1 анкету — получите предложения от десятков банков на специальных условиях
Программа ипотеки
Стоимость жилья, ₽
Первый взнос, ₽
Срок кредита
от 5.75%
Ставка
от 78 861 ₽
Платеж в месяц
Расчёт носит информационный характер и не является публичной офертой
Похожие объекты



3-комн. квартира, 56,6 м², 15/22 эт.
Девяткино
23 мин.




3-комн. квартира, 63,7 м², 18/18 эт.
Девяткино
30 мин.




3-комн. квартира, 71,1 м², 8/18 эт.
Девяткино
30 мин.




3-комн. квартира, 71,1 м², 14/18 эт.
Девяткино
30 мин.
Консультант по новостройкам
12 535 350 ₽
190 334 ₽/м²










