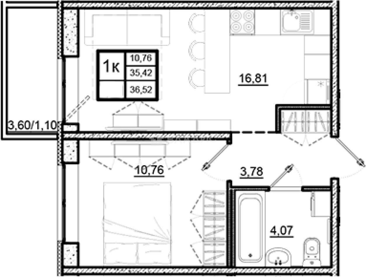
Продается 1-комн. квартира, 35.42 м²
Россия, Ленинградская область, Всеволожский район, Бугры, Гаражный проезд, 29
Девяткино
4 мин.
35.42 м²
Общая площадь
10.76 м²
Жилая площадь
16.81 м²
Площадь кухни
8 из 9
Этаж
Описание
В ЖК представлено множество планировочных решений, от студий до европланировок. Сдаются они с чистовой отделкой, стандартными окнами и высотой потолков 2,7 метра.
На территории ЖК предусмотрены детские и спортивные площадки. Во дворе, свободном от машин, обустроены зоны для отдыха. На первых этажах здания расположены коммерческие помещения. Для владельцев автомобилей предусмотрена стоянка.
Жилой комплекс расположен во Всеволожском районе. В 5 минутах транспортом расположены крупные торгово-развлекательные центры: «Северный молл», «Гранд-Каньон», а также ТРЦ «МЕГА Парнас». В пешей доступности работают продуктовые магазины, отделения почты и банков. Станции метро «Девяткино» и «Парнас» расположены в 20 минутах транспортом.
О квартире
Общая площадь
35.42 м²
Жилая площадь
10.76 м²
Площадь кухни
16.81 м²
Площадь комнат
10.76 м²
Высота потолков
2.7 м
Этаж
8
Окна выходят
На улицу
О доме
Год постройки
2025
Этажность
9
Материал постройки
Кирпично-монолитный
Материал перекрытий
Монолитные
Отопление
Центральное
Расположение
Россия, Ленинградская область, Всеволожский район, Бугры, Гаражный проезд, 29
Девяткино
4 мин.
Гражданский проспект
6 мин.
Парнас
7 мин.
Проспект Просвещения
8 мин.
Академическая
10 мин.
Озерки
10 мин.
Политехническая
12 мин.
Удельная
13 мин.
Ипотечный калькулятор
Заполните 1 анкету — получите предложения от десятков банков на специальных условиях
Программа ипотеки
Стоимость жилья, ₽
Первый взнос, ₽
Срок кредита
от 5.75%
Ставка
от 50 373 ₽
Платеж в месяц
Расчёт носит информационный характер и не является публичной офертой
Похожие объекты





2-комн. квартира, 39,8 м², 12/18 эт.
Девяткино
30 мин.



2-комн. квартира, 40,5 м², 2/18 эт.
Девяткино
30 мин.





1-комн. квартира, 40,3 м², 3/9 эт.
Девяткино
4 мин.




1-комн. квартира, 40,3 м², 5/9 эт.
Девяткино
4 мин.
Консультант по новостройкам
8 007 000 ₽
226 059 ₽/м²






