Продается 3-комн. квартира, 62 м²
Россия, Ленинградская область, Тосненский район, город Тельмана, жилой комплекс Сибирь
Рыбацкое
21 мин.
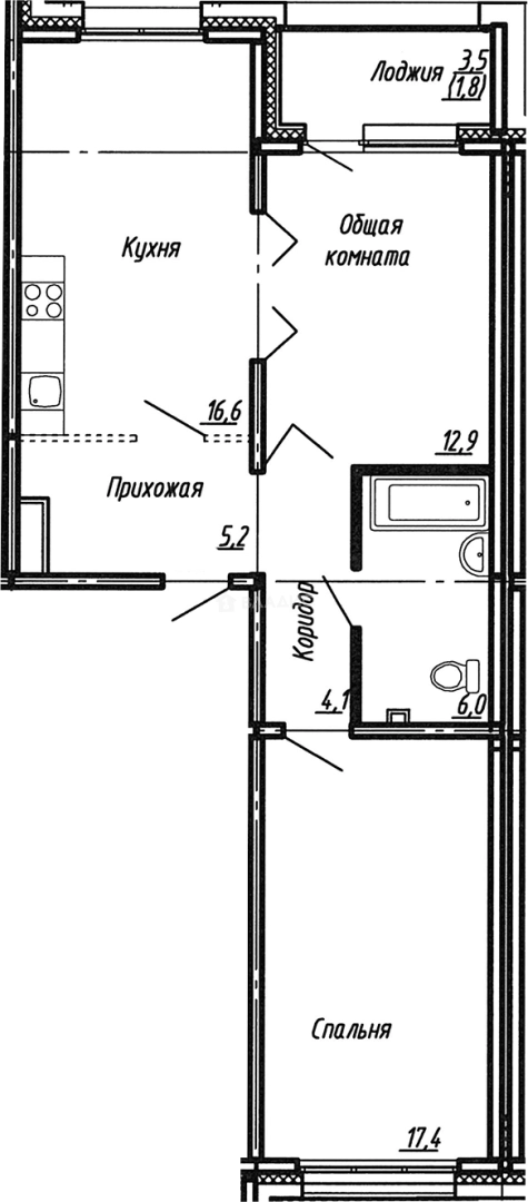
62 м²
Общая площадь
30.3 м²
Жилая площадь
16.6 м²
Площадь кухни
1 из 17
Этаж
Описание
В ЖК предложено множество планировочных решений. Квартиры сдаются с подчистовой и чистовой отделкой с мебелью, высота потолков составляет 2,74 м.
В состав жилого комплекса входит 2 детских сада на 190 и 200 мест, а также школа на 825 мест. Для автовладельцев предусмотрен пятиэтажный паркинг на 299 мест. Внутренние дворы закрыты от машин и случайных прохожих. А по внешнему периметру организовано общественное пространство. В озеленении территории использовано более 1000 растений разных сортов и видов. Также во дворах установлены малые архитектурные формы, детские площадки и места для отдыха.
ЖК расположен в поселке Тельмана. В пешей доступности находятся фельдшерский пункт, детский сад, школа, супермаркеты и торговые центры. Метро «Купчино», «Рыбацкое» и «Шушары» находятся в 30 минутах транспортом.
О квартире
Общая площадь
62 м²
Жилая площадь
30.3 м²
Площадь кухни
16.6 м²
Площадь комнат
12.9+17.4 м²
Высота потолков
2.74 м
Этаж
1
Окна выходят
На улицу
О доме
Год постройки
2026
Этажность
17
Материал постройки
Панельный
Парковка
Многоуровневая
Расположение
Россия, Ленинградская область, Тосненский район, город Тельмана, жилой комплекс Сибирь
Рыбацкое
21 мин.
Шушары
23 мин.
Обухово
26 мин.
Дунайская
27 мин.
Пролетарская
27 мин.
Проспект Славы
30 мин.
Ипотечный калькулятор
Заполните 1 анкету — получите предложения от десятков банков на специальных условиях
Программа ипотеки
Стоимость жилья, ₽
Первый взнос, ₽
Срок кредита
от 5.75%
Ставка
от 56 368 ₽
Платеж в месяц
Расчёт носит информационный характер и не является публичной офертой
Похожие объекты










3-комн. квартира, 56,3 м², 17/17 эт.
Рыбацкое
21 мин.










2-комн. квартира, 56,6 м², 16/17 эт.
Рыбацкое
21 мин.










2-комн. квартира, 56,6 м², 13/17 эт.
Рыбацкое
21 мин.










3-комн. квартира, 57,4 м², 17/17 эт.
Рыбацкое
21 мин.
Консультант по новостройкам
8 960 000 ₽
144 517 ₽/м²











