Продается 3-комн. квартира, 55.08 м²
Россия, Ленинградская область, Всеволожский район, посёлок Бугры, жилой комплекс Новые Горизонты
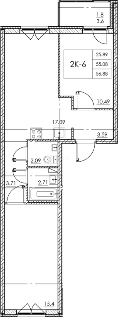
55.08 м²
Общая площадь
25.89 м²
Жилая площадь
17.09 м²
Площадь кухни
16 из 20
Этаж
Описание
Во дворе дома будут располагаться детские площадки с мягким покрытием и спортивные площадки с тренажерами для комфортного отдыха взрослых и детей. Для владельцев автомобилей будут построены два отдельно стоящих паркинга. В каждом подъезде предусмотрены места для колясок и велосипедов. Квартиры в доме сдаются с чистовой отделкой.
О квартире
Общая площадь
55.08 м²
Жилая площадь
25.89 м²
Площадь кухни
17.09 м²
Площадь комнат
10.49+15.4 м²
Высота потолков
2.54 м
Этаж
16
Окна выходят
На улицу
О доме
Год постройки
2027
Этажность
20
Материал постройки
Монолитный
Материал перекрытий
Монолитные
Отопление
Центральное
Парковка
Многоуровневая
Расположение
Россия, Ленинградская область, Всеволожский район, посёлок Бугры, жилой комплекс Новые Горизонты
Ипотечный калькулятор
Заполните 1 анкету — получите предложения от десятков банков на специальных условиях
Программа ипотеки
Стоимость жилья, ₽
Первый взнос, ₽
Срок кредита
от 5.75%
Ставка
от 52 245 ₽
Платеж в месяц
Расчёт носит информационный характер и не является публичной офертой
Похожие объекты




3-комн. квартира, 62,2 м², 8/12 эт.
Девяткино
4 мин.








2-комн. квартира, 60,1 м², 10/18 эт.
Девяткино
4 мин.









2-комн. квартира, 62,9 м², 17/18 эт.
Девяткино
4 мин.






2-комн. квартира, 62,9 м², 15/18 эт.
Девяткино
4 мин.
Консультант по новостройкам
8 304 480 ₽
150 772 ₽/м²





