Продается 1-комн. квартира, 30.5 м²
Россия, Ленинградская область, Всеволожский район, Бугры, Тихая улица, 13к1
Девяткино
4 мин.
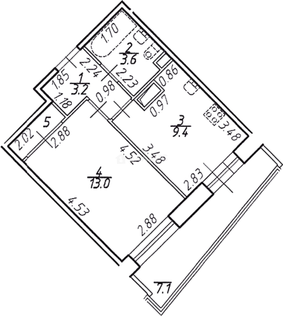
30.5 м²
Общая площадь
13 м²
Жилая площадь
9.4 м²
Площадь кухни
10 из 15
Этаж
Описание
В проекте предложено множество планировочных решений: в наличии квартиры, как классического типа, так и европланировки. Все они сдаются с чистовой отделкой, покупатели могут выбрать выбрать одно из двух цветовых решений.
По всему периметру и внутри жилого комплекса ведется видеонаблюдение, работает консьерж и круглосуточная охрана. В дворах установлены детские площадки с мягким покрытием, а также оборудованы спортивные площадки с тренажерами для занятий спортом.
ЖК расположен во Всеволожском районе. В пешей доступности работают продуктовые магазины, отделения почты и банков. В пяти минутах транспортом находится «МЕГА Парнас», а также «OBI»,«IKEA» и «Ашан», в 15 минутах – курорт «Охта-парк». В радиусе пяти километров расположены метро «Парнас», «Проспект Просвещения», «Гражданский проспект» и «Девяткино». Выезд на КАД – в пяти минутах транспортом.
О квартире
Общая площадь
30.5 м²
Жилая площадь
13 м²
Площадь кухни
9.4 м²
Площадь комнат
13 м²
Высота потолков
2.59 м
Этаж
10
Окна выходят
На улицу
О доме
Год постройки
2024
Этажность
15
Материал постройки
Монолитный
Материал перекрытий
Монолитные
Отопление
Центральное
Парковка
Многоуровневая
Расположение
Россия, Ленинградская область, Всеволожский район, Бугры, Тихая улица, 13к1
Девяткино
4 мин.
Гражданский проспект
6 мин.
Парнас
7 мин.
Проспект Просвещения
8 мин.
Озерки
10 мин.
Академическая
10 мин.
Политехническая
12 мин.
Удельная
13 мин.
Ипотечный калькулятор
Заполните 1 анкету — получите предложения от десятков банков на специальных условиях
Программа ипотеки
Стоимость жилья, ₽
Первый взнос, ₽
Срок кредита
от 5.75%
Ставка
от 36 618 ₽
Платеж в месяц
Расчёт носит информационный характер и не является публичной офертой
Похожие объекты





Студия, 28,8 м², 8/18 эт.
Девяткино
30 мин.





Студия, 27,4 м², 8/18 эт.
Девяткино
30 мин.




Студия, 30,1 м², 2/18 эт.
Девяткино
30 мин.





Студия, 27,4 м², 10/18 эт.
Девяткино
30 мин.
Консультант по новостройкам
5 820 600 ₽
190 840 ₽/м²








