Продается Студия, 28.01 м²
Россия, Ленинградская область, Всеволожский район, Заневское городское поселение, городской посёлок Янино-1
Проспект Большевиков
9 мин.
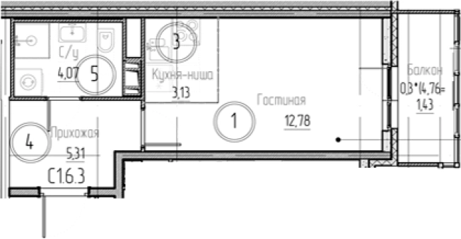
28.01 м²
Общая площадь
19.04 м²
Жилая площадь
5 из 8
Этаж
Описание
В проекте предложено множество планировочных решений: в наличии квартиры, как классического типа, так и европланировки. Сдаются они с подчистовой отделкой, стандартными окнами и высотой потолков 2,9 метра.
Охраняемая закрытая территория комплекса благоустроена: выполнено ландшафтное озеленение, спроектированы зоны отдыха, детская и спортивная площадка. Для владельцев автомобилей предусмотрена парковка.
Жилой комплекс расположен в районе с развитой инфраструктурой. В шаговой доступности есть детский сад, школа, поликлиника, спа-салон, ресторан, пекарня, барбершоп, зоомагазин, цветочная лавка, спортивная студия, большое количество спортивных открытых площадок, благоустроенные велосипедные дорожки и несколько конных клубов. В 1,5 км находится въезд на КАД, а в 4 км — природный парк «Колтушские высоты», на территории которого разработаны 3 эко-маршрута с различными уровнями сложности. До метро «Проспект Большевиков» можно добраться за 20 минут на автомобиле.
О квартире
Общая площадь
28.01 м²
Жилая площадь
19.04 м²
Площадь комнат
19.04 м²
Высота потолков
2.9 м
Этаж
5
Окна выходят
На улицу
О доме
Год постройки
2026
Этажность
8
Материал постройки
Кирпично-монолитный
Материал перекрытий
Монолитные
Отопление
Центральное
Парковка
Наземная
Расположение
Россия, Ленинградская область, Всеволожский район, Заневское городское поселение, городской посёлок Янино-1
Проспект Большевиков
9 мин.
Улица Дыбенко
9 мин.
Ладожская
11 мин.
Новочеркасская
13 мин.
Елизаровская
15 мин.
Ломоносовская
16 мин.
Ипотечный калькулятор
Заполните 1 анкету — получите предложения от десятков банков на специальных условиях
Программа ипотеки
Стоимость жилья, ₽
Первый взнос, ₽
Срок кредита
от 5.75%
Ставка
от 30 890 ₽
Платеж в месяц
Расчёт носит информационный характер и не является публичной офертой
Похожие объекты



Студия, 26,2 м², 9/12 эт.
Улица Дыбенко
11 мин.



Студия, 26,2 м², 6/12 эт.
Улица Дыбенко
11 мин.




Студия, 26,2 м², 12/12 эт.
Улица Дыбенко
11 мин.

Студия, 25,3 м², 12/12 эт.
Улица Дыбенко
11 мин.
Консультант по новостройкам
4 910 084 ₽
175 298 ₽/м²







