Продается 2-комн. квартира, 68.6 м²
Россия, Ленинградская область, Всеволожский район, Дубровское городское поселение, городской посёлок Дубровка, коттеджный посёлок Новая Дубровка, улица Достоевского, 1
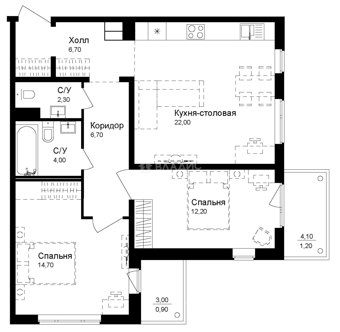
68.6 м²
Общая площадь
26.9 м²
Жилая площадь
22 м²
Площадь кухни
4 из 4
Этаж
Описание
Всего в ЖК спроектировано 295 квартир. Сдаются они без отделки, а высота потолков составляет 2,78 метров.
В состав проекта входит детский сад и школа. Территория комплекса закрыта для посторонних, ведется круглосуточное видеонаблюдение. Дворы благоустроены с элементами ландшафтного дизайна и малых архитектурных форм. Оборудованы детские и Workout площадки.
Жилой комплекс расположен в поселке Дубровка. В пешей доступности находятся школа, детский сад, поликлиника, торговый комплекс, сетевые магазины, аптеки и другие объекты социальной значимости. В 350 метрах находится набережная реки Невы, песчаный пляж и места для активного отдыха. Выезд на КАД находится в 30 км, а метро «Улица Дыбенко» — в 35 минутах транспортом.
О квартире
Общая площадь
68.6 м²
Жилая площадь
26.9 м²
Площадь кухни
22 м²
Площадь комнат
12.2+14.7 м²
Высота потолков
2.75 м
Этаж
4
Окна выходят
На улицу
О доме
Год постройки
2024
Этажность
4
Материал постройки
Панельный
Отопление
Центральное
Расположение
Россия, Ленинградская область, Всеволожский район, Дубровское городское поселение, городской посёлок Дубровка, коттеджный посёлок Новая Дубровка, улица Достоевского, 1
Ипотечный калькулятор
Заполните 1 анкету — получите предложения от десятков банков на специальных условиях
Программа ипотеки
Стоимость жилья, ₽
Первый взнос, ₽
Срок кредита
от 5.75%
Ставка
от 62 269 ₽
Платеж в месяц
Расчёт носит информационный характер и не является публичной офертой
Похожие объекты





2-комн. квартира, 68,5 м², 3/4 эт.








2-комн. квартира, 68,6 м², 4/4 эт.








2-комн. квартира, 68,7 м², 1/4 эт.







2-комн. квартира, 68,5 м², 2/4 эт.
Консультант по новостройкам
9 898 000 ₽
144 286 ₽/м²









