Продается 2-комн. квартира, 40.61 м²
Россия, Ленинградская область, Ломоносовский район, Низинское сельское поселение, деревня Ольгино, жилой комплекс Экография
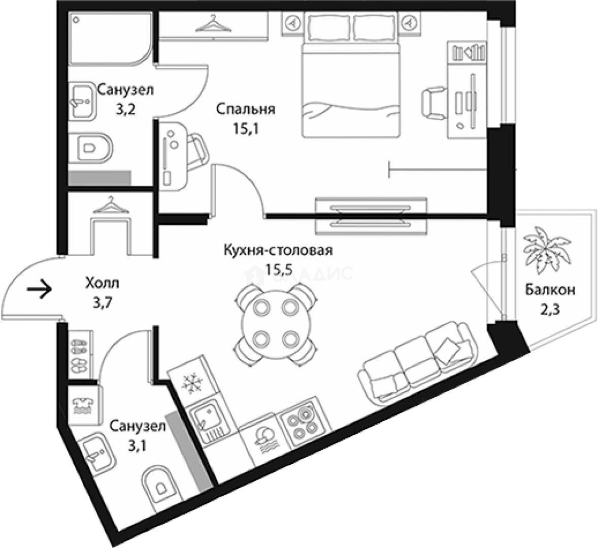
40.61 м²
Общая площадь
15.1 м²
Жилая площадь
15.5 м²
Площадь кухни
2 из 3
Этаж
Описание
В жилом комплексе предложено множество планировочных решений: в наличии квартиры как классического типа, так и европланировки. Все квартиры сдаются с чистовой отделкой и увеличенными окнами, также представлены решения с панорамным остеклением и открытыми балконами.
Территория комплекса благоустроена и закрыта от автомобилей, также на ней имеются образовательные учреждения и торговый центр. Для автовладельцев предусмотрена стоянка.
Жилой комплекс расположен в Ломоносовском районе, в 10 минутах ходьбы до Лугового парка с Дворцом Бельведер. До выезда на КАД — 15 минут транспортом, а до метро «Проспект Ветеранов» — 25 минут транспортом.
О квартире
Общая площадь
40.61 м²
Жилая площадь
15.1 м²
Площадь кухни
15.5 м²
Площадь комнат
15.1 м²
Высота потолков
2.65 м
Этаж
2
Окна выходят
На улицу
О доме
Год постройки
2026
Этажность
3
Материал постройки
Монолитный
Парковка
Наземная
Расположение
Россия, Ленинградская область, Ломоносовский район, Низинское сельское поселение, деревня Ольгино, жилой комплекс Экография
Ипотечный калькулятор
Заполните 1 анкету — получите предложения от десятков банков на специальных условиях
Программа ипотеки
Стоимость жилья, ₽
Первый взнос, ₽
Срок кредита
от 5.75%
Ставка
от 57 779 ₽
Платеж в месяц
Расчёт носит информационный характер и не является публичной офертой
Похожие объекты




1-комн. квартира, 35,2 м², 2/3 эт.




2-комн. квартира, 41 м², 1/3 эт.




2-комн. квартира, 40,5 м², 3/3 эт.




2-комн. квартира, 35,7 м², 1/3 эт.
Консультант по новостройкам
9 184 294 ₽
226 159 ₽/м²





