Продается 2-комн. квартира, 63.98 м²
Россия, Ленинградская область, Всеволожский район, Бугровское городское поселение, жилой комплекс Энфилд
Девяткино
4 мин.
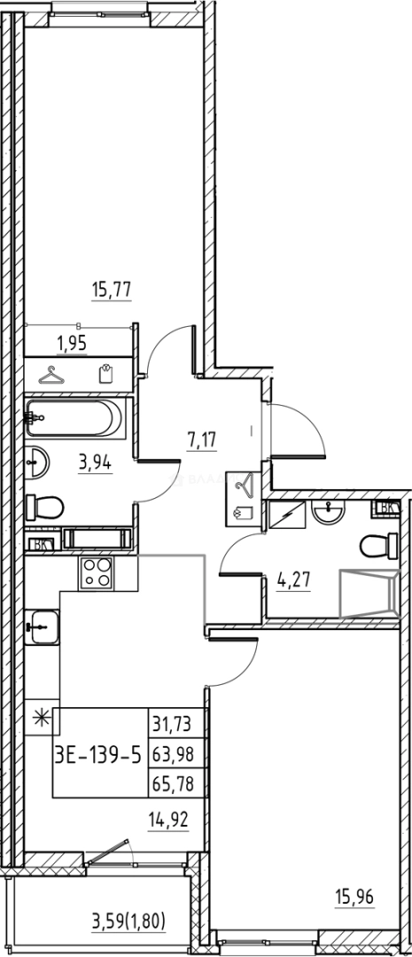
63.98 м²
Общая площадь
31.73 м²
Жилая площадь
14.92 м²
Площадь кухни
9 из 12
Этаж
Описание
Квартиры в ЖК представлены классическими и европланировками. Они передаются покупателям с дизайнерской отделкой в трех вариантах на выбор. В квартирах на первых этажах есть выход на террасы площадью от 10 кв.м. Также есть квартиры с эркерами.
На крышах корпусов предусмотрены благоустроенные зоны отдыха и террасы для занятий йогой. На въезде в квартал предусмотрены 4 многоуровневых паркинга, во дворе расположены детские и спортивные площадки, теннисный корт и стадионы. Территория благоустроена местами для отдыха и пикника, скверами и палисадниками, велосипедными дорожками. В состав жилого комплекса входят школа с углубленным изучением английского языка и 2 детских сада.
В 5 минутах транспортом расположены крупные торгово-развлекательные центры: «Северный молл», «Гранд-Каньон», а также ТРЦ «МЕГА Парнас», «Ашан», «OBI» и «IKEA». В пешей доступности находится гипермаркет «Лента». Выезд на КАД расположен в 15 минутах транспортом, станция метро «Девяткино» – в 10 минутах транспортом.
О квартире
Общая площадь
63.98 м²
Жилая площадь
31.73 м²
Площадь кухни
14.92 м²
Площадь комнат
15.77+15.96 м²
Высота потолков
2.75 м
Этаж
9
Окна выходят
На улицу
О доме
Год постройки
2027
Этажность
12
Материал постройки
Кирпично-монолитный
Материал перекрытий
Монолитные
Отопление
Центральное
Парковка
Многоуровневая
Расположение
Россия, Ленинградская область, Всеволожский район, Бугровское городское поселение, жилой комплекс Энфилд
Девяткино
4 мин.
Гражданский проспект
4 мин.
Парнас
5 мин.
Проспект Просвещения
5 мин.
Озерки
7 мин.
Академическая
8 мин.
Политехническая
9 мин.
Удельная
10 мин.
Ипотечный калькулятор
Заполните 1 анкету — получите предложения от десятков банков на специальных условиях
Программа ипотеки
Стоимость жилья, ₽
Первый взнос, ₽
Срок кредита
от 5.75%
Ставка
от 71 323 ₽
Платеж в месяц
Расчёт носит информационный характер и не является публичной офертой
Похожие объекты





3-комн. квартира, 61,5 м², 6/18 эт.
Девяткино
30 мин.



3-комн. квартира, 62,1 м², 9/18 эт.
Девяткино
30 мин.




3-комн. квартира, 61,5 м², 7/18 эт.
Девяткино
30 мин.



3-комн. квартира, 57,2 м², 2/18 эт.
Девяткино
30 мин.
Консультант по новостройкам
11 337 183 ₽
177 199 ₽/м²






