Продается 1-комн. квартира, 45.43 м²
Россия, Ленинградская область, Всеволожский район, Бугры, Английская улица, 4
Девяткино
4 мин.
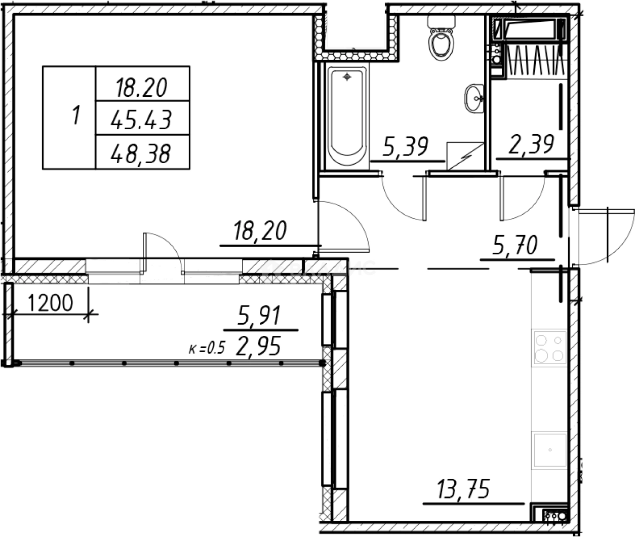
45.43 м²
Общая площадь
18.2 м²
Жилая площадь
13.75 м²
Площадь кухни
6 из 12
Этаж
Описание
Квартиры в ЖК представлены классическими и европланировками. Они передаются покупателям с дизайнерской отделкой в трех вариантах на выбор. В квартирах на первых этажах есть выход на террасы площадью от 10 кв.м. Также есть квартиры с эркерами.
На крышах корпусов предусмотрены благоустроенные зоны отдыха и террасы для занятий йогой. На въезде в квартал предусмотрены 4 многоуровневых паркинга, во дворе расположены детские и спортивные площадки, теннисный корт и стадионы. Территория благоустроена местами для отдыха и пикника, скверами и палисадниками, велосипедными дорожками. В состав жилого комплекса входят школа с углубленным изучением английского языка и 2 детских сада.
В 5 минутах транспортом расположены крупные торгово-развлекательные центры: «Северный молл», «Гранд-Каньон», а также ТРЦ «МЕГА Парнас», «Ашан», «OBI» и «IKEA». В пешей доступности находится гипермаркет «Лента». Выезд на КАД расположен в 15 минутах транспортом, станция метро «Девяткино» – в 10 минутах транспортом.
О квартире
Общая площадь
45.43 м²
Жилая площадь
18.2 м²
Площадь кухни
13.75 м²
Площадь комнат
18.2 м²
Высота потолков
2.75 м
Этаж
6
Окна выходят
На улицу
О доме
Год постройки
2024
Этажность
12
Материал постройки
Кирпично-монолитный
Материал перекрытий
Монолитные
Отопление
Центральное
Парковка
Многоуровневая
Расположение
Россия, Ленинградская область, Всеволожский район, Бугры, Английская улица, 4
Девяткино
4 мин.
Гражданский проспект
4 мин.
Парнас
5 мин.
Проспект Просвещения
5 мин.
Озерки
7 мин.
Академическая
8 мин.
Политехническая
9 мин.
Удельная
10 мин.
Ипотечный калькулятор
Заполните 1 анкету — получите предложения от десятков банков на специальных условиях
Программа ипотеки
Стоимость жилья, ₽
Первый взнос, ₽
Срок кредита
от 5.75%
Ставка
от 56 140 ₽
Платеж в месяц
Расчёт носит информационный характер и не является публичной офертой
Похожие объекты







Студия, 39,4 м², 5/9 эт.
Проспект Просвещения
9 мин.





2-комн. квартира, 42,1 м², 6/18 эт.
Девяткино
30 мин.



3-комн. квартира, 41,6 м², 6/22 эт.
Девяткино
23 мин.


2-комн. квартира, 44,3 м², 15/22 эт.
Девяткино
23 мин.
Консультант по новостройкам
8 923 691 ₽
196 428 ₽/м²







