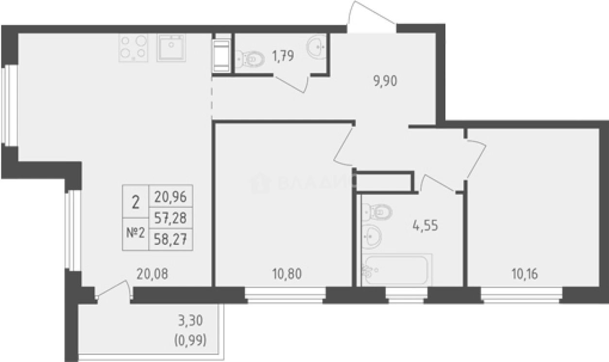
Продается 3-комн. квартира, 57.28 м²
Россия, Ленинградская область, Всеволожский район, Свердловское городское поселение, деревня Новосаратовка, жилой комплекс Южная Нева
Рыбацкое
4 мин.
57.28 м²
Общая площадь
20.96 м²
Жилая площадь
20.08 м²
Площадь кухни
6 из 23
Этаж
Описание
В проекте представлено множество планировочных решений. Все лоты сдаются без отделки, со стандартными окнами и высотой потолков 2,75 метра. Есть возможность дозаказать чистовую отделку и кухню.
Территория комплекса благоустроена — имеется школа и 2 детских сада, кафе и магазины, приватные дворы, спортивные и игровые площадки. Для автовладельцев предусмотрено 7 многоуровневых паркингов.
Проект находится в 5 минутах от выезда на КАД. Рядом — Большой Обуховский мост и Невский лесопарк. В районе работают школы, детские сады, отделения банка и почты, продовольственные магазины, инфраструктура развита. До ТРЦ «МЕГА Дыбенко» — 15 минут на машине, до ТРЦ «Лондон Молла» — 20 минут. Метро «Пролетарская» в 10 минут транспортом.
О квартире
Общая площадь
57.28 м²
Жилая площадь
20.96 м²
Площадь кухни
20.08 м²
Площадь комнат
10.8+10.16 м²
Высота потолков
2.75 м
Этаж
6
Окна выходят
На улицу
О доме
Год постройки
2028
Этажность
23
Материал постройки
Монолитный
Парковка
Многоуровневая
Расположение
Россия, Ленинградская область, Всеволожский район, Свердловское городское поселение, деревня Новосаратовка, жилой комплекс Южная Нева
Рыбацкое
4 мин.
Пролетарская
7 мин.
Обухово
7 мин.
Ломоносовская
10 мин.
Шушары
10 мин.
Дунайская
11 мин.
Улица Дыбенко
11 мин.
Проспект Славы
13 мин.
Ипотечный калькулятор
Заполните 1 анкету — получите предложения от десятков банков на специальных условиях
Программа ипотеки
Стоимость жилья, ₽
Первый взнос, ₽
Срок кредита
от 5.75%
Ставка
от 62 358 ₽
Платеж в месяц
Расчёт носит информационный характер и не является публичной офертой
Похожие объекты





3-комн. квартира, 54,8 м², 15/16 эт.
Пролетарская
7 мин.







3-комн. квартира, 63,8 м², 10/19 эт.
Пролетарская
7 мин.





3-комн. квартира, 54,8 м², 5/16 эт.
Пролетарская
7 мин.







3-комн. квартира, 63,8 м², 16/19 эт.
Пролетарская
7 мин.
Консультант по новостройкам
9 912 018 ₽
173 046 ₽/м²




