Продается 2-комн. квартира, 36.8 м²
Россия, Ленинградская область, Всеволожский район, Заневское городское поселение, городской посёлок Янино-1, ЖК Янила Драйв
Проспект Большевиков
11 мин.
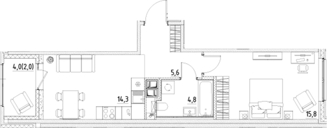
36.8 м²
Общая площадь
10.27 м²
Жилая площадь
17.8 м²
Площадь кухни
2 из 10
Этаж
Описание
В ЖК квартиры имеют более 100 вариантов планировочных решений. В них предусмотрены остекленные балконы и лоджии, в некоторых – окна в ванных комнатах, французские балконы, мастер-спальни и кухни-гостиные. Застройщик передает покупателям квартиры с чистовой отделкой и без отделки.
В составе объекта есть кинотеатр на свежем воздухе. На первых этажах находятся коммерческие помещения. Для автовладельцев предусмотрен многоуровневый паркинг на 300 мест. В домах установлены бесшумные скоростные лифты «OTIS» и расположены помещения для хранения колясок и велосипедов. Во дворах установлены детские и спортивные площадки, а также развивающие игровые комплексы. Придомовая территория благоустроена зелеными зонами, местами для прогулок и отдыха, ландшафтным дизайном и малыми архитектурными формами.
Жилой комплекс находится в Янино, где расположены Ржевский лесопарк и река Лапка, работают школы, детские сады, магазины и супермаркеты. Выезд на КАД находится в трех минутах транспортом, до центра города можно доехать по Шоссейной ул. и просп. Косыгина. Метро «Ладожская» расположено в 20 минутах транспортом.
О квартире
Общая площадь
36.8 м²
Жилая площадь
10.27 м²
Площадь кухни
17.8 м²
Площадь комнат
10.27 м²
Высота потолков
2.75 м
Этаж
2
Окна выходят
На улицу
О доме
Год постройки
2025
Этажность
10
Материал постройки
Панельный
Материал перекрытий
Монолитные
Отопление
Центральное
Парковка
Многоуровневая
Расположение
Россия, Ленинградская область, Всеволожский район, Заневское городское поселение, городской посёлок Янино-1, ЖК Янила Драйв
Проспект Большевиков
11 мин.
Улица Дыбенко
12 мин.
Ладожская
13 мин.
Новочеркасская
15 мин.
Елизаровская
17 мин.
Ломоносовская
18 мин.
Ипотечный калькулятор
Заполните 1 анкету — получите предложения от десятков банков на специальных условиях
Программа ипотеки
Стоимость жилья, ₽
Первый взнос, ₽
Срок кредита
от 5.75%
Ставка
от 46 589 ₽
Платеж в месяц
Расчёт носит информационный характер и не является публичной офертой
Похожие объекты


2-комн. квартира, 39,9 м², 12/12 эт.
Улица Дыбенко
11 мин.




2-комн. квартира, 39,3 м², 12/12 эт.
Улица Дыбенко
11 мин.






1-комн. квартира, 40,5 м², 2/12 эт.
Проспект Большевиков
11 мин.






2-комн. квартира, 40,4 м², 7/12 эт.
Проспект Большевиков
11 мин.
Консультант по новостройкам
7 405 540 ₽
201 238 ₽/м²







