Продается 1-комн. квартира, 35.7 м²
Россия, Ленинградская область, Всеволожский район, Заневское городское поселение, городской посёлок Янино-1, жилой комплекс Янинский Лес
Проспект Большевиков
11 мин.
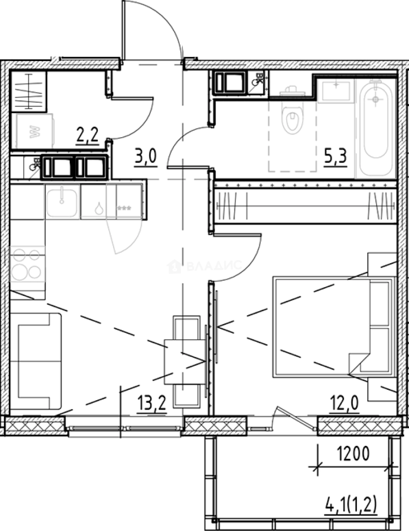
35.7 м²
Общая площадь
12 м²
Жилая площадь
13.2 м²
Площадь кухни
10 из 12
Этаж
Описание
В жилом комплексе предложено множество планировочных решений: в наличии квартиры, как классического типа, так и европланировки. Сдаются они без отделки, со стандартными окнами и увеличенными окнами на последних этажах. Высота потолков составляет 2,72 метра и 3 метра на последних этажах. Есть возможность дозаказа чистовой отделки в двух вариантах: «Скандинавия» и «Дерево».
На закрытой территории комплекса предусмотрены современные системы видеонаблюдения. Во дворах расположены детские площадки из экологичных материалов, зоны ворк-аута, площадки для йоги, велодорожки и велопарковки. По фасаду зданий и на всей территории комплекса предусмотрено разноуровневое освещение, выполнена декоративная подсветка растений. На первых этажах расположены коммерческие помещения. Для владельцев автомобилей предусмотрена стоянка.
ЖК расположен во Всеволожском районе. Квартал находится в микрорайоне с развитой коммерческой и социальной инфраструктурой. В шаговой доступности общеобразовательная школа, детские сады, частные детские центры, спорткомплекс, кафе, магазины и аптеки. В 5 минутах транспортом выезд на КАД. Метро «Ладожская» в 15 минутах транспортом.
О квартире
Общая площадь
35.7 м²
Жилая площадь
12 м²
Площадь кухни
13.2 м²
Площадь комнат
12 м²
Высота потолков
2.74 м
Этаж
10
Окна выходят
На улицу
О доме
Год постройки
2026
Этажность
12
Материал постройки
Панельный
Отопление
Центральное
Парковка
Наземная
Расположение
Россия, Ленинградская область, Всеволожский район, Заневское городское поселение, городской посёлок Янино-1, жилой комплекс Янинский Лес
Проспект Большевиков
11 мин.
Улица Дыбенко
11 мин.
Ладожская
12 мин.
Новочеркасская
14 мин.
Елизаровская
16 мин.
Академическая
18 мин.
Ипотечный калькулятор
Заполните 1 анкету — получите предложения от десятков банков на специальных условиях
Программа ипотеки
Стоимость жилья, ₽
Первый взнос, ₽
Срок кредита
от 5.75%
Ставка
от 38 280 ₽
Платеж в месяц
Расчёт носит информационный характер и не является публичной офертой
Похожие объекты






1-комн. квартира, 37,1 м², 5/12 эт.
Проспект Большевиков
11 мин.






1-комн. квартира, 35,2 м², 5/12 эт.
Проспект Большевиков
11 мин.





1-комн. квартира, 35,7 м², 7/12 эт.
Проспект Большевиков
11 мин.






1-комн. квартира, 35,7 м², 6/12 эт.
Проспект Большевиков
11 мин.
Консультант по новостройкам
6 084 810 ₽
170 443 ₽/м²







