Продается 3-комн. квартира, 85.49 м²
Россия, Ленинградская область, Ломоносовский район, Аннинское городское поселение, городской посёлок Новоселье, жилой комплекс Уютный
Проспект Ветеранов
15 мин.
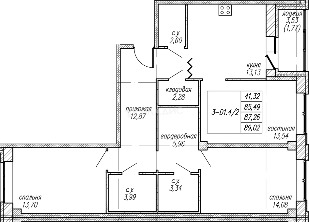
85.49 м²
Общая площадь
41.32 м²
Жилая площадь
13.13 м²
Площадь кухни
2 из 9
Этаж
Описание
Квартиры представлены широким выбором планировочных решений от студий до трехкомнатных квартир классического и евроформата. В каждой квартире предусмотрены остекленная лоджия или балкон, а также увеличенные оконные проемы с двухкамерными стеклопакетами. Высота потолков составляет 2,7 метра, на девятом этаже - 3,6 метра.
Каждая парадная оборудована колясочными, а на первых этажах размещены детские комнаты. Жители комплекса могут пользоваться бесшумными лифтами, а для автовладельцем предусмотрена наземная автостоянка. Инфрастурктура обеспечивается коммерческими помещениями на первых этажах.
Закрытый двор благоустроен ландшафтным дизайном, спортивными и детскими площадками. Безопасность обеспечивается системой контроля доступа. Также жилой комплекс обладает собственной школой и двумя детскими садами. «Мега Новоселье» расположена через дорогу. До выезда на КАД, ЗСД и станции метро «Проспект Ветеранов» можно добраться за 15 минут транспортом.
О квартире
Общая площадь
85.49 м²
Жилая площадь
41.32 м²
Площадь кухни
13.13 м²
Площадь комнат
13.54+14.08+13.7 м²
Высота потолков
2.7 м
Этаж
2
Окна выходят
На улицу
О доме
Год постройки
2027
Этажность
9
Материал постройки
Кирпично-монолитный
Материал перекрытий
Монолитные
Отопление
Центральное
Парковка
Наземная
Расположение
Россия, Ленинградская область, Ломоносовский район, Аннинское городское поселение, городской посёлок Новоселье, жилой комплекс Уютный
Проспект Ветеранов
15 мин.
Ленинский проспект
17 мин.
Автово
18 мин.
Кировский завод
19 мин.
Московская
21 мин.
Парк Победы
23 мин.
Нарвская
23 мин.
Электросила
24 мин.
Ипотечный калькулятор
Заполните 1 анкету — получите предложения от десятков банков на специальных условиях
Программа ипотеки
Стоимость жилья, ₽
Первый взнос, ₽
Срок кредита
от 5.75%
Ставка
от 89 567 ₽
Платеж в месяц
Расчёт носит информационный характер и не является публичной офертой
Похожие объекты




4-комн. квартира, 84,3 м², 2/12 эт.
Проспект Ветеранов
19 мин.






5-комн. квартира, 86,7 м², 2/12 эт.
Проспект Ветеранов
15 мин.




4-комн. квартира, 84,3 м², 11/12 эт.
Проспект Ветеранов
19 мин.




4-комн. квартира, 84,3 м², 8/12 эт.
Проспект Ветеранов
19 мин.
Консультант по новостройкам
14 237 167 ₽
166 537 ₽/м²













