Продается 2-комн. квартира, 56.4 м²
Россия, Ленинградская область, Всеволожский район, Муринское городское поселение
Девяткино
4 мин.
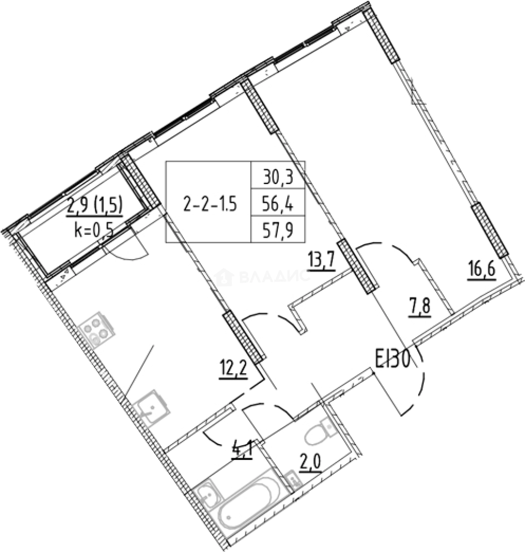
56.4 м²
Общая площадь
30.3 м²
Жилая площадь
12.2 м²
Площадь кухни
2 из 12
Этаж
Описание
В проекте представлены квартиры с 1–3 комнатами в формате европланировок. Внутреннее пространство организовано с учетом функциональности и комфорта: спроектированы просторные кухни-гостиные, гардеробные и лоджии. Высота потолков составляет 2,73 метра, установлены стандартные окна. Помещения идут без отделки, что позволяет реализовать индивидуальные интерьерные решения.
Территория жилого комплекса продумана до мелочей: дворы свободны от автомобилей, работают системы видеонаблюдения и контроля доступа. Для хранения вещей предусмотрены келлеры разной площади. Внутри квартала обустроены зоны отдыха, зоны для детей разных возрастов, площадки для воркаута, тенниса и пикников. Владельцам авто доступен многоуровневый паркинг и открытая стоянка.
Проект расположен во Всеволожске, в Ленинградской области. До ближайшей остановки общественного транспорта на Оборонной улице — 15 минут пешком. За 5–15 минут транспортом можно добраться до школ, детских садов, поликлиник, торговых центров, магазинов и аптек. До КАД — около 10 минут транспортом, а путь до центра Санкт-Петербурга занимает 1 час.
О квартире
Общая площадь
56.4 м²
Жилая площадь
30.3 м²
Площадь кухни
12.2 м²
Площадь комнат
13.7+16.6 м²
Высота потолков
2.73 м
Этаж
2
Окна выходят
На улицу
О доме
Год постройки
2029
Этажность
12
Материал постройки
Монолитный
Парковка
Многоуровневая
Расположение
Россия, Ленинградская область, Всеволожский район, Муринское городское поселение
Девяткино
4 мин.
Гражданский проспект
5 мин.
Академическая
7 мин.
Политехническая
10 мин.
Площадь Мужества
11 мин.
Проспект Просвещения
13 мин.
Озерки
13 мин.
Парнас
13 мин.
Ипотечный калькулятор
Заполните 1 анкету — получите предложения от десятков банков на специальных условиях
Программа ипотеки
Стоимость жилья, ₽
Первый взнос, ₽
Срок кредита
от 5.75%
Ставка
от 72 347 ₽
Платеж в месяц
Расчёт носит информационный характер и не является публичной офертой
Похожие объекты





3-комн. квартира, 61,5 м², 6/18 эт.
Девяткино
30 мин.



3-комн. квартира, 62,1 м², 9/18 эт.
Девяткино
30 мин.




3-комн. квартира, 61,5 м², 7/18 эт.
Девяткино
30 мин.



3-комн. квартира, 57,2 м², 2/18 эт.
Девяткино
30 мин.
Консультант по новостройкам
11 499 943 ₽
203 900 ₽/м²








