Продается 4-комн. квартира, 65.5 м²
Россия, Ленинградская область, Ломоносовский район, Лаголовское сельское поселение, деревня Лаголово, жилой комплекс А101 Лаголово, 1.3-2
Проспект Ветеранов
27 мин.
65.5 м²
Общая площадь
31.8 м²
Жилая площадь
17 м²
Площадь кухни
2 из 9
Этаж
Описание
В проекте представлено несколько планировочных решений — от студий до просторных 3х-комнатных квартир. Среди представленных лотов имеются также квартиры с патио, мастер-спальнями и гардеробными.
На территории комплекса расположено 8 детских садов и 3 школы. Большую часть территории занимают парковые и городские общественные пространства с зонами отдыха и занятий спортом.
Жилой комплекс расположен в 15 минутах выезда на КАД, в 25 минутах езды на автомобиле до метро «Проспект Ветеранов», до центра города дорога займет 45 минут.
О квартире
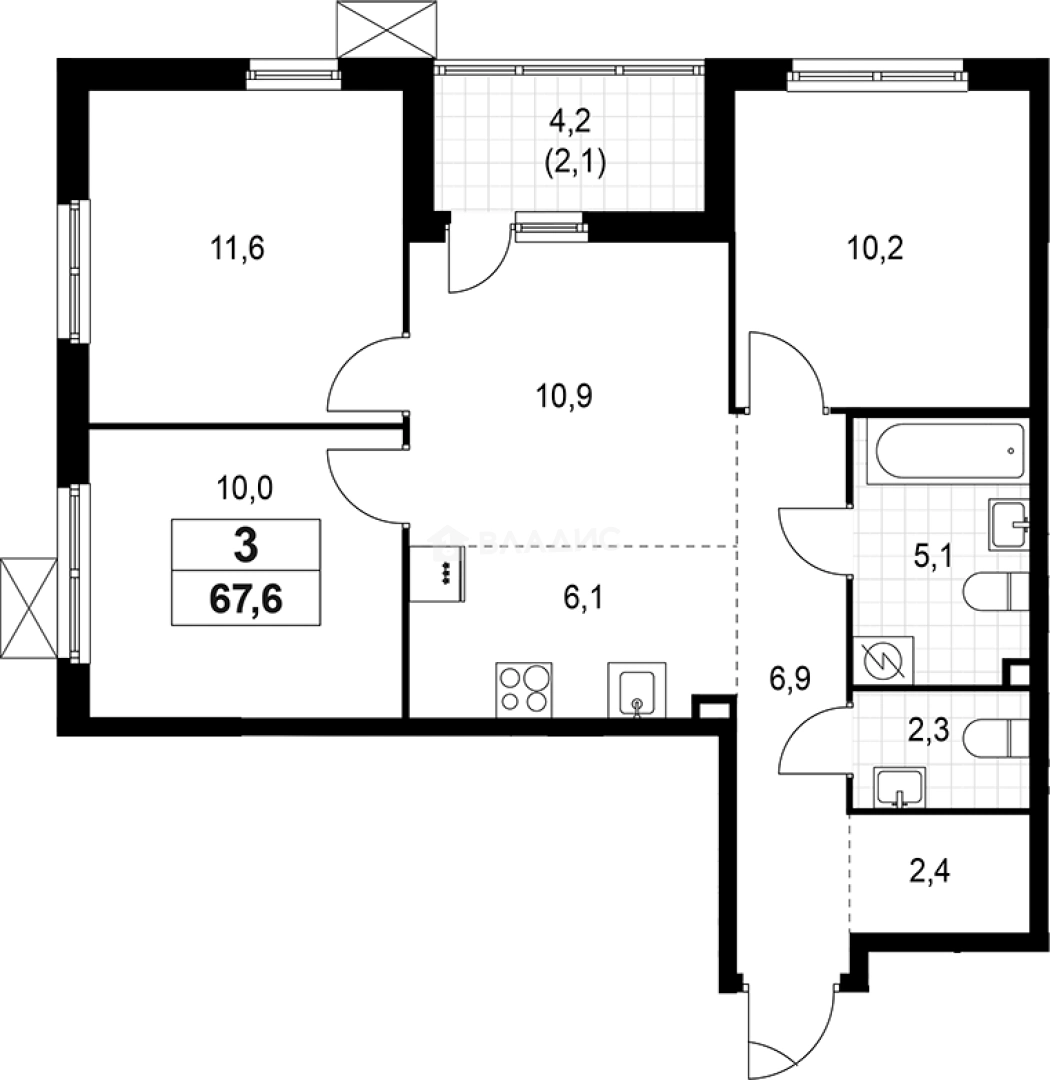
Общая площадь
65.5 м²
Жилая площадь
31.8 м²
Площадь кухни
17 м²
Площадь комнат
11.6+10+10.2 м²
Высота потолков
2.85 м
Этаж
2
Окна выходят
На улицу
О доме
Год постройки
2026
Этажность
9
Материал постройки
Кирпично-монолитный
Отопление
Центральное
Парковка
Многоуровневая
Расположение
Россия, Ленинградская область, Ломоносовский район, Лаголовское сельское поселение, деревня Лаголово, жилой комплекс А101 Лаголово, 1.3-2
Проспект Ветеранов
27 мин.
Ленинский проспект
29 мин.
Ипотечный калькулятор
Заполните 1 анкету — получите предложения от десятков банков на специальных условиях
Программа ипотеки
Стоимость жилья, ₽
Первый взнос, ₽
Срок кредита
от 5.75%
Ставка
от 70 732 ₽
Платеж в месяц
Расчёт носит информационный характер и не является публичной офертой
Похожие объекты








3-комн. квартира, 74,8 м², 7/12 эт.
Проспект Ветеранов
27 мин.









3-комн. квартира, 68,8 м², 1/12 эт.
Проспект Ветеранов
27 мин.


3-комн. квартира, 62,3 м², 6/9 эт.
Проспект Ветеранов
27 мин.





4-комн. квартира, 72,2 м², 8/9 эт.
Проспект Ветеранов
27 мин.
Консультант по новостройкам
11 243 232 ₽
171 653 ₽/м²








