Продается 4-комн. квартира, 75.1 м²
Россия, Ленинградская область, Ломоносовский район, Лаголовское сельское поселение, деревня Лаголово, жилой комплекс А101 Лаголово, 1.3-2
Проспект Ветеранов
27 мин.
75.1 м²
Общая площадь
35.7 м²
Жилая площадь
16.6 м²
Площадь кухни
13 из 9
Этаж
Описание
В проекте представлено несколько планировочных решений — от студий до просторных 3х-комнатных квартир. Среди представленных лотов имеются также квартиры с патио, мастер-спальнями и гардеробными.
На территории комплекса расположено 8 детских садов и 3 школы. Большую часть территории занимают парковые и городские общественные пространства с зонами отдыха и занятий спортом.
Жилой комплекс расположен в 15 минутах выезда на КАД, в 25 минутах езды на автомобиле до метро «Проспект Ветеранов», до центра города дорога займет 45 минут.
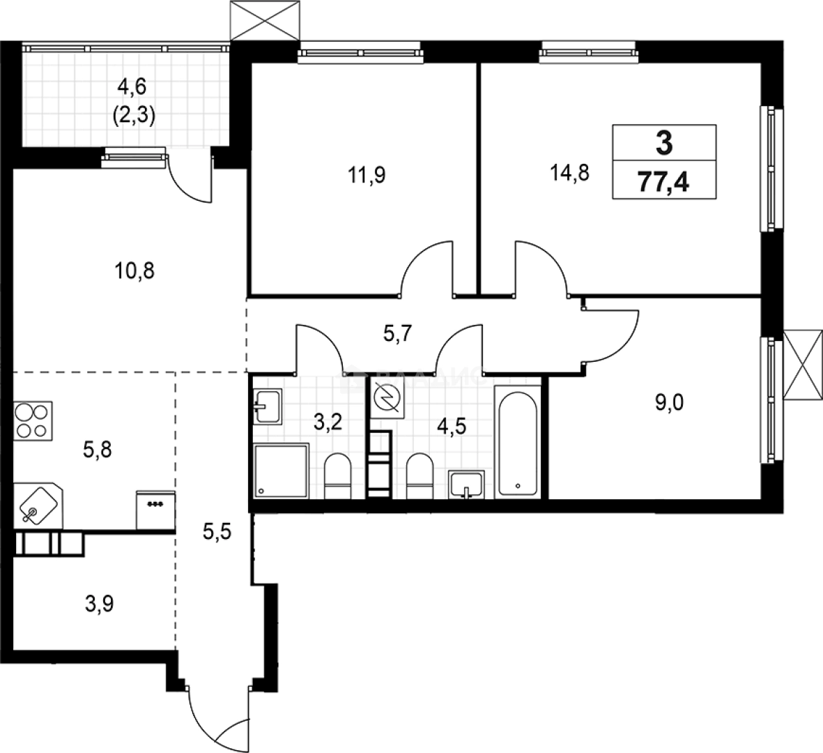
О квартире
Общая площадь
75.1 м²
Жилая площадь
35.7 м²
Площадь кухни
16.6 м²
Площадь комнат
11.9+14.8+9 м²
Высота потолков
2.85 м
Этаж
13
Окна выходят
На улицу
О доме
Год постройки
2026
Этажность
9
Материал постройки
Кирпично-монолитный
Отопление
Центральное
Парковка
Многоуровневая
Расположение
Россия, Ленинградская область, Ломоносовский район, Лаголовское сельское поселение, деревня Лаголово, жилой комплекс А101 Лаголово, 1.3-2
Проспект Ветеранов
27 мин.
Ленинский проспект
29 мин.
Ипотечный калькулятор
Заполните 1 анкету — получите предложения от десятков банков на специальных условиях
Программа ипотеки
Стоимость жилья, ₽
Первый взнос, ₽
Срок кредита
от 5.75%
Ставка
от 81 595 ₽
Платеж в месяц
Расчёт носит информационный характер и не является публичной офертой
Похожие объекты





4-комн. квартира, 72,2 м², 8/9 эт.
Проспект Ветеранов
27 мин.





4-комн. квартира, 65 м², 12/9 эт.
Проспект Ветеранов
27 мин.






4-комн. квартира, 72,2 м², 10/9 эт.
Проспект Ветеранов
27 мин.






4-комн. квартира, 75,4 м², 6/9 эт.
Проспект Ветеранов
27 мин.
Консультант по новостройкам
12 969 918 ₽
172 702 ₽/м²







