Продается 2-комн. квартира, 49.4 м²
Россия, Ленинградская область, Ломоносовский район, Лаголовское сельское поселение, деревня Лаголово, жилой комплекс А101 Лаголово, 1.3-2
Проспект Ветеранов
27 мин.
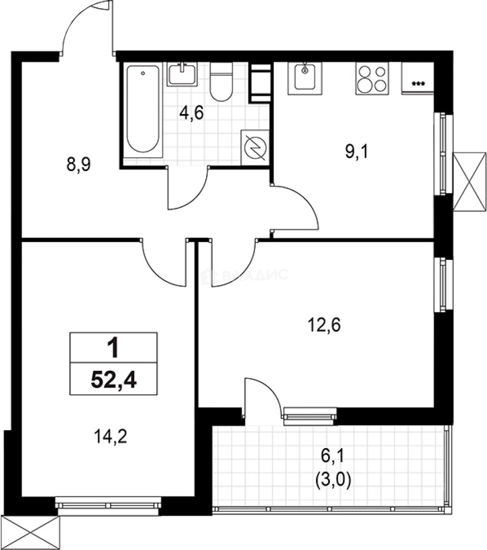
49.4 м²
Общая площадь
26.8 м²
Жилая площадь
9.1 м²
Площадь кухни
6 из 9
Этаж
Описание
В проекте представлено несколько планировочных решений — от студий до просторных 3х-комнатных квартир. Среди представленных лотов имеются также квартиры с патио, мастер-спальнями и гардеробными.
На территории комплекса расположено 8 детских садов и 3 школы. Большую часть территории занимают парковые и городские общественные пространства с зонами отдыха и занятий спортом.
Жилой комплекс расположен в 15 минутах выезда на КАД, в 25 минутах езды на автомобиле до метро «Проспект Ветеранов», до центра города дорога займет 45 минут.
О квартире
Общая площадь
49.4 м²
Жилая площадь
26.8 м²
Площадь кухни
9.1 м²
Площадь комнат
14.2+12.6 м²
Высота потолков
2.85 м
Этаж
6
Окна выходят
На улицу
О доме
Год постройки
2026
Этажность
9
Материал постройки
Кирпично-монолитный
Отопление
Центральное
Парковка
Многоуровневая
Расположение
Россия, Ленинградская область, Ломоносовский район, Лаголовское сельское поселение, деревня Лаголово, жилой комплекс А101 Лаголово, 1.3-2
Проспект Ветеранов
27 мин.
Ленинский проспект
29 мин.
Ипотечный калькулятор
Заполните 1 анкету — получите предложения от десятков банков на специальных условиях
Программа ипотеки
Стоимость жилья, ₽
Первый взнос, ₽
Срок кредита
от 5.75%
Ставка
от 56 532 ₽
Платеж в месяц
Расчёт носит информационный характер и не является публичной офертой
Похожие объекты






2-комн. квартира, 45,9 м², 5/9 эт.
Проспект Ветеранов
27 мин.


2-комн. квартира, 45,8 м², 11/9 эт.
Проспект Ветеранов
27 мин.




2-комн. квартира, 49,4 м², 9/9 эт.
Проспект Ветеранов
27 мин.






3-комн. квартира, 55,1 м², 12/9 эт.
Проспект Ветеранов
27 мин.
Консультант по новостройкам
8 986 076 ₽
181 905 ₽/м²




