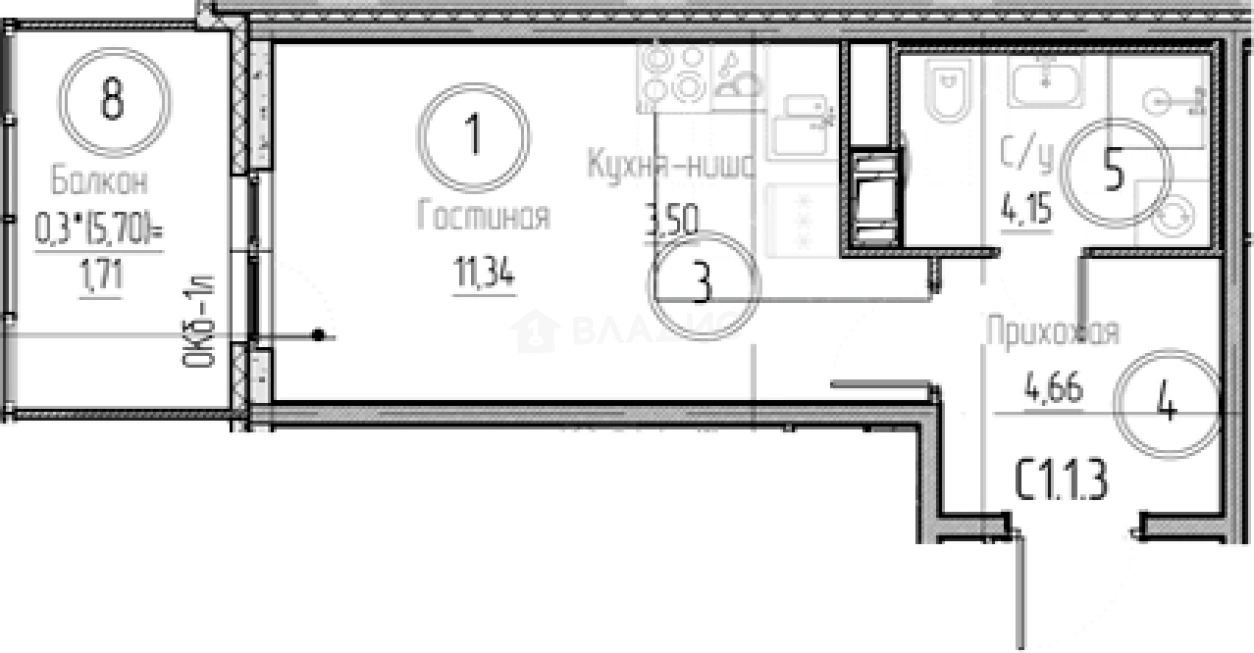
Продается Студия, 23.65 м²
Россия, Ленинградская область, Всеволожский район, Заневское городское поселение, городской посёлок Янино-1, жилой комплекс Янино-парк
Улица Дыбенко
11 мин.
23.65 м²
Общая площадь
14.84 м²
Жилая площадь
11 из 12
Этаж
Описание
В проекте предложено множество планировочных решений. Сдаются квартиры с подчистовой отделкой, стандартными и увеличенными окнами, с высотой потолков до 3,77 метров, а также с системой умный дом. Есть возможность дозаказать чистовую отделку.
Внутренняя инфраструктура жилого комплекса ориентирована на обеспечение комфортного проживания жильцов. Территория комплекса обустроена детскими площадками, также продуманы спортивные зоны, где расположены турники, тренажеры, теннисный стол. На первых этажах зданий предусмотрены коммерческие помещения. Территория комплекса организована по концепции «Двор без машин», выполнен ландшафтный дизайн. Для владельцев автомобилей организована стоянка.
Проект расположен в развитом, тихом районе со всей социальной и коммерческой инфраструктурой. В пешей доступности продуктовые магазины, школы, детские сады, медицинские центры, остановки общественного транспорта. Метро «Ладожская» расположено в 20 минутах транспортом.
О квартире
Общая площадь
23.65 м²
Жилая площадь
14.84 м²
Площадь комнат
14.84 м²
Высота потолков
2.7199999999999998 м
Этаж
11
Окна выходят
На улицу
О доме
Год постройки
2027
Этажность
12
Материал постройки
Кирпично-монолитный
Материал перекрытий
Монолитные
Расположение
Россия, Ленинградская область, Всеволожский район, Заневское городское поселение, городской посёлок Янино-1, жилой комплекс Янино-парк
Улица Дыбенко
11 мин.
Проспект Большевиков
11 мин.
Ладожская
13 мин.
Новочеркасская
15 мин.
Елизаровская
16 мин.
Ломоносовская
17 мин.
Пролетарская
17 мин.
Ипотечный калькулятор
Заполните 1 анкету — получите предложения от десятков банков на специальных условиях
Программа ипотеки
Стоимость жилья, ₽
Первый взнос, ₽
Срок кредита
от 5.75%
Ставка
от 27 090 ₽
Платеж в месяц
Расчёт носит информационный характер и не является публичной офертой
Похожие объекты




Студия, 23,7 м², 9/12 эт.
Улица Дыбенко
11 мин.



Студия, 23,7 м², 5/12 эт.
Улица Дыбенко
11 мин.




Студия, 25,5 м², 5/12 эт.
Улица Дыбенко
11 мин.



Студия, 24,1 м², 6/12 эт.
Улица Дыбенко
11 мин.
Консультант по новостройкам
4 306 084 ₽
182 076 ₽/м²




