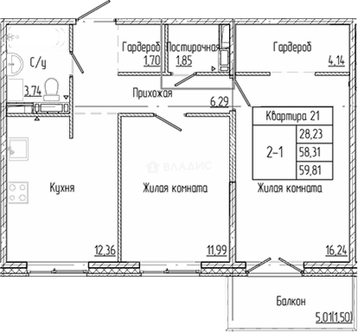
Продается 2-комн. квартира, 58.31 м²
Россия, Ленинградская область, Всеволожский район, посёлок Щеглово
58.31 м²
Общая площадь
28.23 м²
Жилая площадь
12.36 м²
Площадь кухни
3 из 8
Этаж
Описание
В проекте предложено множество планировочных решений: в наличии квартиры, как классического типа, так и европланировки. Сдаются они с чистовой отделкой, высотой потолков 2.7 метров и увеличенными окнами.
Территория комплекса благоустроена: выполнено ландшафтное озеленение, спроектирована детская и спортивная площадка, места для отдыха. Для владельцев автомобилей предусмотрена стоянка.
Жилой комплекс расположен в поселке Щеглово. Рядом находится детский сад, школа, супермаркеты, аптеки, отделение почты и банка, парк усадьбы Щеглово. В пешей доступности расположены ж/д станции «Щеглово» и «Романовка». До метро «Новочеркасская» можно добраться за 35 минут на автомобиле.
О квартире
Общая площадь
58.31 м²
Жилая площадь
28.23 м²
Площадь кухни
12.36 м²
Площадь комнат
11.99+16.24 м²
Высота потолков
2.7 м
Этаж
3
Окна выходят
На улицу
О доме
Год постройки
2026
Этажность
8
Материал постройки
Панельный
Парковка
Наземная
Расположение
Россия, Ленинградская область, Всеволожский район, посёлок Щеглово
Ипотечный калькулятор
Заполните 1 анкету — получите предложения от десятков банков на специальных условиях
Программа ипотеки
Стоимость жилья, ₽
Первый взнос, ₽
Срок кредита
от 5.75%
Ставка
от 53 807 ₽
Платеж в месяц
Расчёт носит информационный характер и не является публичной офертой
Похожие объекты











2-комн. квартира, 54,5 м², 6/8 эт.










2-комн. квартира, 58,3 м², 2/8 эт.











2-комн. квартира, 55,1 м², 1/8 эт.











2-комн. квартира, 54,5 м², 7/8 эт.
Консультант по новостройкам
8 552 830 ₽
146 679 ₽/м²










