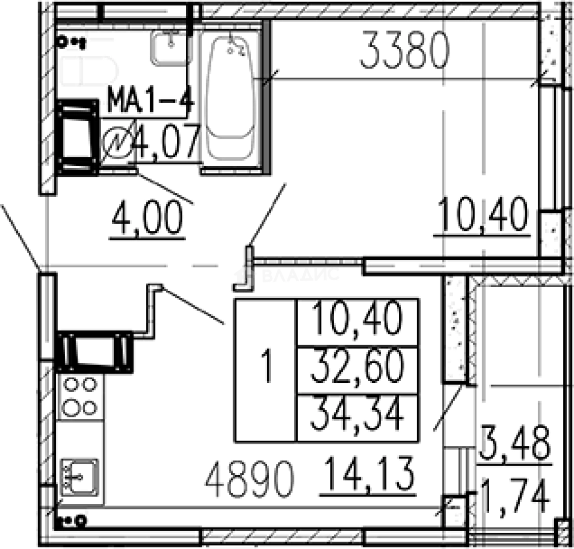
Продается 1-комн. квартира, 32.6 м²
Россия, Ленинградская область, Всеволожский район, Бугры, Школьная улица, 13
Девяткино
4 мин.
32.6 м²
Общая площадь
10.4 м²
Жилая площадь
14.13 м²
Площадь кухни
3 из 18
Этаж
Описание
В проекте предложено множество планировочных решений: от студий до 2-комнатных квартир. Сдаются они с чистовой отделкой и высотой потолков 2.6 метров.
Территория комплекса благоустроена: выполнено озеленение, установлены детские и спортивные площадки, спроектированы зоны для отдыха, велодорожки и велопарковки. Также для жителей предусмотрен собственный встроенный детский сад.
Жилой комплекс расположен в экологически чистом и развивающемся поселке Бугры. Рядом расположена школа, аптека, детская поликлиника, магазины, детские сады, фитнес-клуб. Менее чем в 20 минутах езды расположен ТЦ «Мега», конный клуб «Дерби» и горнолыжный курорт «Охта-парк». В 2 км от комплекса находится въезд на КАД, до метро «Девяткино» и «Парнас» можно добраться за 15 минут на автомобиле.
О квартире
Общая площадь
32.6 м²
Жилая площадь
10.4 м²
Площадь кухни
14.13 м²
Площадь комнат
10.4 м²
Высота потолков
2.6 м
Этаж
3
Окна выходят
На улицу
О доме
Год постройки
2028
Этажность
18
Материал постройки
Монолитный
Материал перекрытий
Монолитные
Отопление
Центральное
Расположение
Россия, Ленинградская область, Всеволожский район, Бугры, Школьная улица, 13
Девяткино
4 мин.
Гражданский проспект
6 мин.
Парнас
6 мин.
Проспект Просвещения
7 мин.
Озерки
9 мин.
Академическая
9 мин.
Политехническая
11 мин.
Удельная
12 мин.
Ипотечный калькулятор
Заполните 1 анкету — получите предложения от десятков банков на специальных условиях
Программа ипотеки
Стоимость жилья, ₽
Первый взнос, ₽
Срок кредита
от 5.75%
Ставка
от 31 393 ₽
Платеж в месяц
Расчёт носит информационный характер и не является публичной офертой
Похожие объекты




Студия, 28,0 м², 13/18 эт.
Девяткино
30 мин.





Студия, 28,8 м², 6/18 эт.
Девяткино
30 мин.





Студия, 28,3 м², 12/18 эт.
Девяткино
30 мин.




Студия, 28,8 м², 8/18 эт.
Девяткино
30 мин.
Консультант по новостройкам
4 989 960 ₽
153 067 ₽/м²










