Продается 1-комн. квартира, 34.5 м²
Россия, Ленинградская область, Ломоносовский район, Аннинское городское поселение, деревня Пески, улица Солдата Власова, 1к1
Проспект Ветеранов
18 мин.
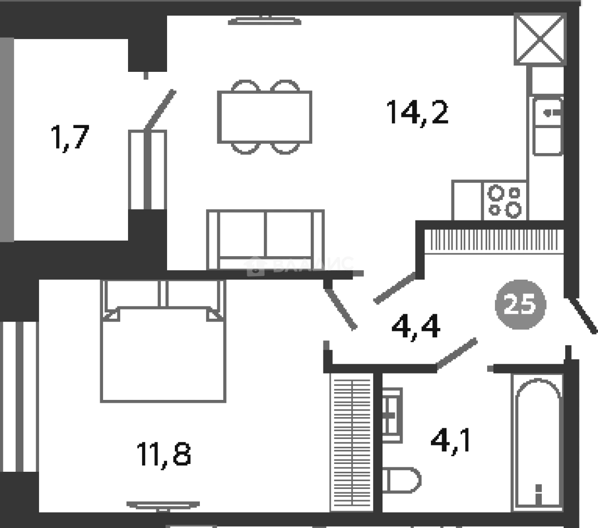
34.5 м²
Общая площадь
11.8 м²
Жилая площадь
14.2 м²
Площадь кухни
1 из 4
Этаж
Описание
В проекте представлены квартиры с 1 и 2 комнатами, европланировки, а также варианты с террасами, балконами и лоджиями с остеклением. В помещениях установлены стандартные окна, а высота потолков составляет 2,75 м. Квартиры идут без отделки: выполнена стяжка пола, проведено отопление с установкой газового котла, сделана разводка электрики с розетками и выключателями, вмонтированы счетчики на воду и газ.
Территория комплекса благоустроена и озеленена: предусмотрены детские площадки и зоны отдыха. Пространство спроектировано по концепции без машин: стоянка для авто проложена по периметру. Для удобства жителей оборудованы кладовые в цокольном этаже. Безопасность обеспечивается системой видеонаблюдения, решением бытовых вопросов занимается консьерж.
Проект расположен на юге Ленинградской области в деревне Пески Ломоносовского района. Район отличается благоприятной экологией, низкой транспортной загруженностью и близостью к Финскому заливу. В пределах 5–15 минут транспортом находятся школы, детские сады, поликлиника, магазины, салоны красоты, пляж и пункты выдачи. До КАД можно добраться за 10 минут транспортом, до Стрельны — за 15 минут, а до Петергофа — за 30 минут. Ближайшие станции метро — Автово и Московская, доступны в 30 минутах транспортом.
О квартире
Общая площадь
34.5 м²
Жилая площадь
11.8 м²
Площадь кухни
14.2 м²
Площадь комнат
11.8 м²
Высота потолков
2.75 м
Этаж
1
Окна выходят
На улицу
О доме
Год постройки
2025
Этажность
4
Материал постройки
Монолитный
Материал перекрытий
Монолитные
Отопление
Центральное
Парковка
Наземная
Расположение
Россия, Ленинградская область, Ломоносовский район, Аннинское городское поселение, деревня Пески, улица Солдата Власова, 1к1
Проспект Ветеранов
18 мин.
Ленинский проспект
20 мин.
Автово
21 мин.
Кировский завод
23 мин.
Московская
24 мин.
Парк Победы
26 мин.
Ипотечный калькулятор
Заполните 1 анкету — получите предложения от десятков банков на специальных условиях
Программа ипотеки
Стоимость жилья, ₽
Первый взнос, ₽
Срок кредита
от 5.75%
Ставка
от 35 300 ₽
Платеж в месяц
Расчёт носит информационный характер и не является публичной офертой
Похожие объекты









2-комн. квартира, 32,3 м², 10/12 эт.
Проспект Ветеранов
18 мин.









1-комн. квартира, 31,6 м², 10/12 эт.
Проспект Ветеранов
18 мин.









2-комн. квартира, 35,7 м², 2/12 эт.
Проспект Ветеранов
18 мин.









2-комн. квартира, 35,7 м², 4/12 эт.
Проспект Ветеранов
18 мин.
Консультант по новостройкам
5 611 000 ₽
162 638 ₽/м²





