Продается 2-комн. квартира, 31.6 м²
Россия, Ленинградская область, Всеволожское городское поселение, посёлок Ковалёво, улица Александра Разгонина, 1к1
Проспект Большевиков
13 мин.
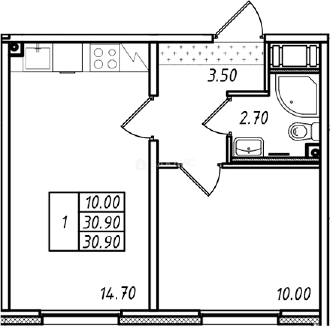
31.6 м²
Общая площадь
10 м²
Жилая площадь
14.7 м²
Площадь кухни
15 из 16
Этаж
Описание
В жилом комплексе предложено множество планировочных решений: в наличии квартиры, как классического типа, так и европланировки. Трубы отопления и водоснабжения, скрытые в стяжке пола, сохраняют эстетику пространства, а установленные клапаны инфильтрации — чистоту и свежесть воздуха. Квартиры сдаются уже с чистовой отделкой и высотой потолков 2,55 метра.
На территории жилого комплекса спроектированы велодорожки, наземные паркинги и гостевые автопарковки. Во дворе, закрытом от машин, находятся стильные зоны отдыха, современные детские и спортивные площадки. Ландшафт благоустроен по новому стандарту ЛСР: газон, крупномеры и многолетние кустарники. Безопасность в жилом комплексе обеспечивают камеры видеонаблюдения. В домах установлена пожарная сигнализация, датчики дыма и система пожаротушения на каждом этаже, а на территории организована безбарьерная среда.
Жилой комплекс расположен во Всеволожском районе. В пешей доступности от комплекса находится железнодорожная станция «Ковалево». Ближайшие крупные торговые центры «Охта Молл» и «Мега Дыбенко» — в 30 минутах транспортом. 20 минут необходимо, чтобы доехать до Ржевского лесопарка, 30 минут — до Колтушских высот с экотропой, 50 минут — до Ладожского озера. В перспективе до жилого комплекса планируется продлить автобусный маршрут, вместе с продолжением Ирииновского проспекта город обещает построить развязку с КАД.
О квартире
Общая площадь
31.6 м²
Жилая площадь
10 м²
Площадь кухни
14.7 м²
Площадь комнат
10 м²
Высота потолков
2.55 м
Этаж
15
Окна выходят
На улицу
О доме
Год постройки
2025
Этажность
16
Материал постройки
Панельный
Материал перекрытий
Монолитные
Отопление
Центральное
Парковка
Многоуровневая
Расположение
Россия, Ленинградская область, Всеволожское городское поселение, посёлок Ковалёво, улица Александра Разгонина, 1к1
Проспект Большевиков
13 мин.
Ладожская
14 мин.
Улица Дыбенко
14 мин.
Академическая
16 мин.
Новочеркасская
16 мин.
Гражданский проспект
16 мин.
Девяткино
16 мин.
Площадь Мужества
18 мин.
Ипотечный калькулятор
Заполните 1 анкету — получите предложения от десятков банков на специальных условиях
Программа ипотеки
Стоимость жилья, ₽
Первый взнос, ₽
Срок кредита
от 5.75%
Ставка
от 32 742 ₽
Платеж в месяц
Расчёт носит информационный характер и не является публичной офертой
Похожие объекты






1-комн. квартира, 32 м², 8/12 эт.
Проспект Большевиков
11 мин.






1-комн. квартира, 32 м², 7/12 эт.
Проспект Большевиков
11 мин.






Студия, 30,7 м², 4/12 эт.
Проспект Большевиков
11 мин.






Студия, 29,5 м², 6/12 эт.
Проспект Большевиков
11 мин.
Консультант по новостройкам
5 204 425 ₽
164 697 ₽/м²







