Продается 2-комн. квартира, 60.9 м²
Россия, Ленинградская область, Всеволожский район, городской посёлок Кузьмоловский, Железнодорожная улица, 5А
Девяткино
11 мин.
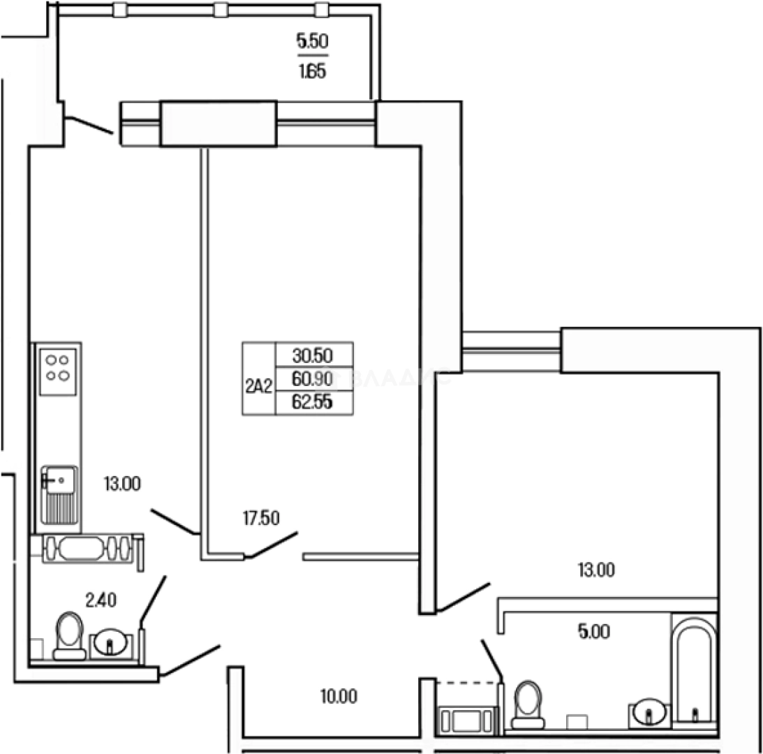
60.9 м²
Общая площадь
30.5 м²
Жилая площадь
13 м²
Площадь кухни
3 из 19
Этаж
Описание
В жилом комплексе предложено множество разнообразных планировочных решений: от студий до 3-к квартир. Сдаются они с увеличенными окнами, высотой потолков до 3 метров и чистовой отделкой в 2-х цветовых решениях. На лоджиях выполнено панорамное остекление. Также имеются квартиры с террасами и видом на лесной массив.
Территория двора частично располагается на эксплуатируемой кровле коммерческих помещений, где расположен детский сад и спортивный зал. Для детей предусмотрена детская площадка.
Жилой комплекс расположен в экологически чистом районе с развитой инфраструктурой. Рядом находятся школы, детские сады, спортивная школа, поликлиника, магазины, салоны красоты и аптеки. В 10 минутах на автомобиле расположен круглогодичный курорт «Охта Парк», Зубровник, Кавголовские озера и живописный Кузьмоловский карьер. До ЖД станции «Кузьмолово» можно добраться за 5 минут пешком, до метро «Гражданский проспект» — 15 минут на автомобиле, а до центра Санкт-Петербурга — 40 минут.
О квартире
Общая площадь
60.9 м²
Жилая площадь
30.5 м²
Площадь кухни
13 м²
Площадь комнат
13+17.5 м²
Высота потолков
2.75 м
Этаж
3
Окна выходят
На улицу
О доме
Год постройки
2025
Этажность
19
Материал постройки
Газобетонный блок
Отопление
Центральное
Парковка
Наземная
Расположение
Россия, Ленинградская область, Всеволожский район, городской посёлок Кузьмоловский, Железнодорожная улица, 5А
Девяткино
11 мин.
Гражданский проспект
15 мин.
Парнас
15 мин.
Проспект Просвещения
17 мин.
Академическая
19 мин.
Озерки
19 мин.
Политехническая
21 мин.
Площадь Мужества
22 мин.
Ипотечный калькулятор
Заполните 1 анкету — получите предложения от десятков банков на специальных условиях
Программа ипотеки
Стоимость жилья, ₽
Первый взнос, ₽
Срок кредита
от 5.75%
Ставка
от 70 674 ₽
Платеж в месяц
Расчёт носит информационный характер и не является публичной офертой
Похожие объекты









2-комн. квартира, 58,6 м², 1/19 эт.
Девяткино
11 мин.









2-комн. квартира, 60,7 м², 13/19 эт.
Девяткино
11 мин.








2-комн. квартира, 60,9 м², 7/19 эт.
Девяткино
11 мин.







2-комн. квартира, 60,9 м², 15/19 эт.
Девяткино
11 мин.
Консультант по новостройкам
11 233 936 ₽
184 466 ₽/м²










