Купить дом в районе Правобережный в Магнитогорске
Россия, Челябинская область, Магнитогорск, коттеджный посёлок Соты
191.4 м²
Площадь дома
6 сот
Площадь участка
Кирпичный
Материал постройки
1
Этажей
Описание
Семейная ипотека , ПВ от 20%, 6%
Особые условия для сотрудников ПАО «ММК» - компенсация 50% процентных платежей, предусмотренных к выплате по ипотечному кредиту.
Экологически чистый район, огороженный шлагбаумом. Асфальтированные дороги по всему посёлку, освещенные дороги,
ИHФPАСТPУKTУРА:
Парковая зона, включающая детские и спортивные площадки, беговые и велосипедные дорожки, каток и лыжную трассу в зимний период, прокат, spa и реабилитационный центр, кафе и много зелени.
Маршрутное такси №56 до поселка.
Асфальтированные дороги с пешеходными тропами.
Детские и спортивные площадки.
Своя управляющая компания.
В шаговой доступности магазины.
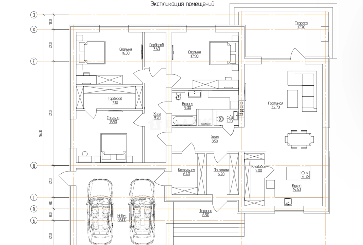
ПЛАНИРОВКА:
кухня-гостиная - 52,3 м2;
мастер-спальня – 23,6 м2;
спальня №2 – 16,5 м2;
спальня №3 – 17,9 м2;
ванная - 9 м2;
гостевой санузел - 1,7м2;
холл №1 – 9,7 м2;
холл №2 – 8,5 м2;
прихожая - 6,2м2;
Гараж - 36 м2;
Котельная 6,4 м2;
КОММУНИКАЦИИ:
◾Электричество - центральное.
◾Водоснабжение - центральное.
◾Канализация - центральное.
◾Газ - центральный.
Окажу помощь в оформлении ипотеки на выгодных условиях.
Организую показ в удобное для вас время!
Агентство недвижимости «АВРОРА»
г. Магнитогорск, пр. Ленина, д. 154.
Все, продаваемые нами объекты недвижимости, проходят обязательную полную юридическую экспертизу!
Отзывы о нас, Вы можете посмотреть в 2Гис.
С УВАЖЕНИЕМ Евгений Андронов!
О доме
Год постройки
2025
Этажей в доме
1
Общая площадь
191.4 м²
Жилая площадь
90.7 м²
Площадь кухни
19.6 м²
Площадь комнат
23,6+16,50+17,9+32,7 м²
Материал постройки
Кирпичный
Материал перекрытий
Ж/б плиты
Материал кровли
Мягкая черепица
Высота потолков
4 м
Об участке
Площадь участка
6 сот.
Статус участка
Индивидуальное жилищное строительство
Электричество
Есть
Газ
Есть
Водоснабжение
Есть
Канализация
Есть
Гараж
Есть
Подъезд к участку
Асфальт
Расположение
Россия, Челябинская область, Магнитогорск, коттеджный посёлок Соты
Ипотечный калькулятор
Заполните 1 анкету — получите предложения от десятков банков на специальных условиях
Программа ипотеки
Стоимость жилья, ₽
Первый взнос, ₽
Срок кредита
от 5.75%
Ставка
от 81 784 ₽
Платеж в месяц
Расчёт носит информационный характер и не является публичной офертой
Предложите свою цену
13 000 000 ₽
67 921 ₽/м²


































































