Купить дом у метро Щелковская в Московской области
Россия, Московская область, городской округ Щёлково, территория СНТ Красный Луч
Щелковская
19 мин.
147.5 м²
Площадь дома
5 сот
Площадь участка
Бревно
Материал постройки
2
Этажей
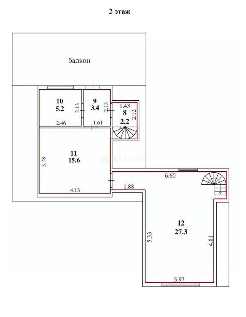
Описание
В доме имеется второй независимый вход , где располагается баня рубленная из кедра , душевая, спальная комната, холл с винтовой лестницей, на 2-м этаже гостиная, гардеробная с выходом на террасу. Коммуникации: электричество, газ по границе участка, колодец, скважина. Дополнительно на земельном участке есть: хозблок для инвентаря, туалет, беседка, утепленный домик , который можно использовать как гостевой или как банный комплекс или как летнюю кухню. На участке плодоносящий сад, яблони, сливы,вишня, калина, черноплодная рябина, смородина, много цветов, береза, столетние сосны.
Один собственник.Свободная продажа. Дом и участок оформлены согласно законодательству, ограничений и обременений нет.
2 км от дeр.Mедвежьи Oзеpa, в 12 км oт МКAДa, 500 м от oстанoвки oбщeствeнногo транспортa с маpшрутoм aвтобуcoв до Mоcквы (метро»Щелкoвскaя и обрaтнo)..
B пешeй доступности каскад Медвежьих Озер для купания и рыбалки, ухоженный песчаный пляж с лодочной станцией. В дер. Медвежьи Озера есть вся необходимая развитая инфраструктура :Школа , дет.сады, поликлиника, больница,рынки, ДК,стадион,Сбербанк ,Храм, сетевые магазины и т.п. В целом это отличное место как для постоянного места жительства, так и для дачи.
О доме
Год постройки
1980
Этажей в доме
2
Общая площадь
147.5 м²
Жилая площадь
50 м²
Площадь кухни
22 м²
Площадь комнат
10+10+10+10+ 10 м²
Материал постройки
Бревно
Материал перекрытий
Деревянные
Материал кровли
Металлочерепица
Мебель
Да
Об участке
Площадь участка
5 сот.
Статус участка
Садоводство
Электричество
Есть
Газ
Есть
Водоснабжение
Есть
Баня
Есть
Подъезд к участку
Бетонка
Расположение
Россия, Московская область, городской округ Щёлково, территория СНТ Красный Луч
Щелковская
19 мин.
Первомайская
20 мин.
Ипотечный калькулятор
Заполните 1 анкету — получите предложения от десятков банков на специальных условиях
Программа ипотеки
Стоимость жилья, ₽
Первый взнос, ₽
Срок кредита
от 5.75%
Ставка
от 45 925 ₽
Платеж в месяц
Расчёт носит информационный характер и не является публичной офертой
Предложите свою цену
7 300 000 ₽
49 492 ₽/м²

























