Купить дом в Московской области
Россия, Московская область, Волоколамский городской округ, коттеджный посёлок Лесное Озеро-2, 85
126 м²
Площадь дома
11 сот
Площадь участка
Деревянный
Материал постройки
2
Этажей
Описание
Этот уютный дом из высококачественного деревянного бруса площадью 126 кв.м расположен на участке 11 соток в окружении вековых сосен и карьеров. Здесь вы сможете насладиться тишиной и единением с природой, забыв о городской суете.
Дом подходит для круглогодичного проживания. Отопление - газ.
Центральное водоснабжение, канализация септик.
Ограждение -металлический высокий забор. Крыша-металлочерепица. Балкон.
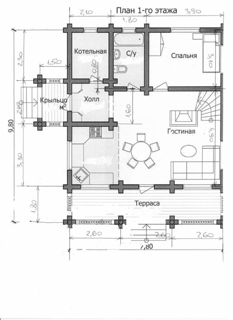
Кухня совмещена с гостинной-40 кв.м. Со стороны кухни пристроена веранда.
В доме новая мебель. Все что на фото, остается для комфортного проживания.
Санузел с итальянской сантехникой на первом этаже.
Дом оснащен всеми необходимыми инженерными коммуникациями , есть интернет.
На территории участка есть небольшой гостевой дом:
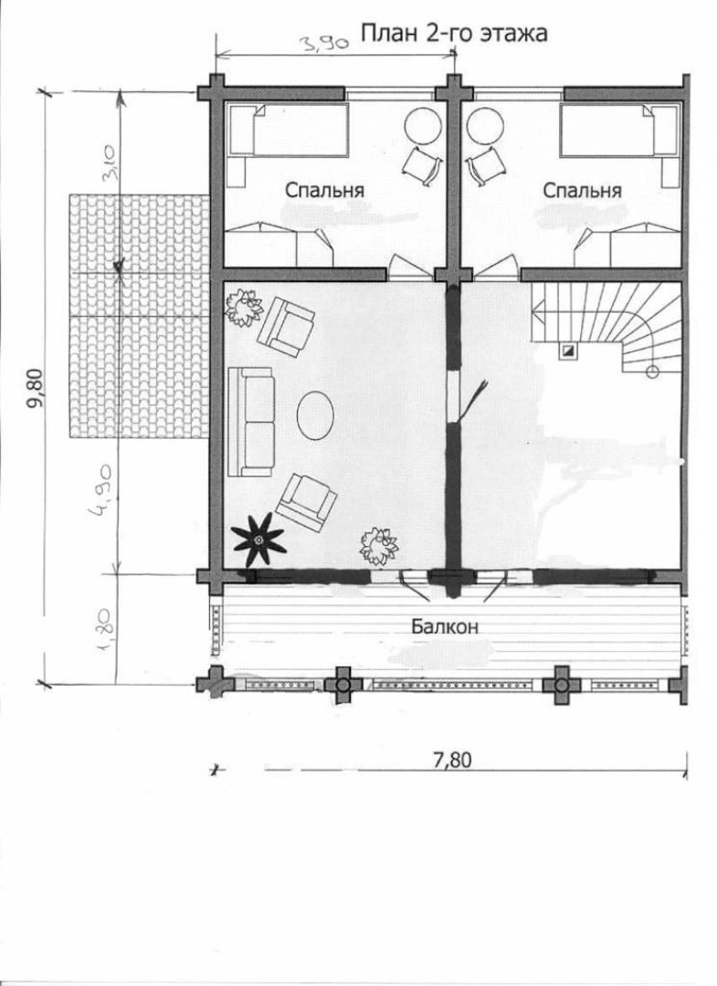
На первом этаже расположена кухня и спальня, на втором этаже спальня.
Коттеджный поселок полностью заселён, а также обеспечивает круглосуточную охрану и видеонаблюдение, а также развитую инфраструктуру: магазины на территории коттеджного посёлка, детский сад и школа в 5 километрах.
Документы:
Один взрослый собственник. ДКП 5 лет. Без обременений. Свободная продажа.
Звоните прямо сейчас, чтобы забронировать показ и стать владельцем вашего загородного оазиса!
О доме
Год постройки
2018
Этажей в доме
2
Общая площадь
126 м²
Жилая площадь
36 м²
Площадь кухни
40 м²
Площадь комнат
12+12+12 м²
Материал постройки
Деревянный
Материал перекрытий
Деревянные
Материал кровли
Металлочерепица
Совмещенных санузлов
1
Об участке
Площадь участка
11 сот.
Статус участка
Садоводство
Электричество
Есть
Газ
Есть
Водоснабжение
Есть
Канализация
Есть
Без благоустройства участка
Есть
Расположение
Россия, Московская область, Волоколамский городской округ, коттеджный посёлок Лесное Озеро-2, 85
Ипотечный калькулятор
Заполните 1 анкету — получите предложения от десятков банков на специальных условиях
Программа ипотеки
Стоимость жилья, ₽
Первый взнос, ₽
Срок кредита
от 5.75%
Ставка
от 125 193 ₽
Платеж в месяц
Расчёт носит информационный характер и не является публичной офертой
Предложите свою цену
19 900 000 ₽
157 937 ₽/м²
































