Купить дом в Московской области
Россия, Московская область, городской округ Пушкинский, деревня Григорково, территория Вишни-Григорково, 44
181.6 м²
Площадь дома
6 сот
Площадь участка
Блочный
Материал постройки
2
Этажей
Описание
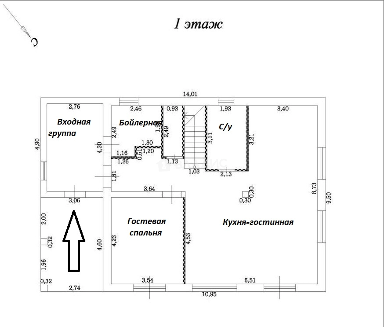
Общая площадь помещений 181,6 м кв.
Площадь помещений первого этажа - 100 м кв.
Площадь помещений второго этажа - 81,6 м кв.
Коммуникации: электричество 15 кВт, септик, скважина, магистральный газ. Все коммуникации заведены в дом. Бойлерная оборудована под ключ, включая газовый котел. Дом продается в предчистовой отделке, также будут установлена сантехника, по желанию - можем выполнить чистовую отделку под нового собственника. Планировка выполнена с учетом эргономики.
Первый этаж - входная зона, бойлерная, санузел, гостевая спальня, кухня-гостиная с выходом на патио.
Второй этаж - мастер-спальня, две спальни, санузел, гардероб.
Материал стен - пеноблок 400, фундамент УШП, теплый водяной пол, полусухая стяжка, встроенные конвектора, монолитная лестница, двухкамерные стеклопакеты. Строительно-монтажные работы выполнены из качественных материалов, все этапы строительства проводились с привлечением стройконтроля и ведением фото-видеофиксации. Выполнена разводка внутренних инженерных сетей по всему дому. Внешняя отделка полностью выполнена - штукатурка по фасаду, водосточная система, подшивка свесов, фасадное освещение, отмостка.
Участок 6 соток (категория земель - земли поселений), огорожен, частично выполнено благоустройство участка, выполнено мощение патио перед домом, дорожки, въездная группа, посажены плодовые деревья.
Поселок находится в границах деревни Григорково, огорожен по всему периметру, обустроено уличное освещение, дороги заасфальтированы, есть пешеходные дорожки, гостевая парковка. Многие проживают постоянно. Автобусная остановка находиться в трех минутах ходьбы от поселка. Удобный выезд на Ярославское шоссе и ЦКАД. В 5 минутах езды (5 км) находится жд станция Софрино (Ярославское направление). В рп Софрино развитая инфраструктура, объекты социальной значимости (Две средние образовательные школы, 3 детских сада, поликлиника, дом культуры, сетевые магазины, фитнес-клубы, кафе, рестораны. В округе большое количество объектов культурного наследия - Дом купцов Аигиных, музей-усадьба Мураново, Никольская пещерная часовня и другие.
1 взрослый собственник. Документы готовы к сделке. Оперативный показ и выход на сделку. Помощь в одобрении ипотеки на выгодных для Вас условиях, есть свой ипотечный брокер. Гарантируем юридическую и финансовую безопасность сделки. Безопасность сделки обеспечена стандартами работы Гильдии риэлторов Московской области. Звоните и покупайте уже сейчас!
О доме
Год постройки
2022
Этажей в доме
2
Общая площадь
181.6 м²
Жилая площадь
73.1 м²
Площадь кухни
40 м²
Площадь комнат
14,9+14,49+15,35+28,36 м²
Материал постройки
Блочный
Материал перекрытий
Монолитные
Материал кровли
Мягкая черепица
Высота потолков
3 м
Об участке
Площадь участка
6 сот.
Статус участка
Индивидуальное жилищное строительство
Электричество
Есть
Газ
Есть
Водоснабжение
Есть
Канализация
Есть
Без благоустройства участка
Есть
Подъезд к участку
Асфальт
Расположение
Россия, Московская область, городской округ Пушкинский, деревня Григорково, территория Вишни-Григорково, 44
Ипотечный калькулятор
Заполните 1 анкету — получите предложения от десятков банков на специальных условиях
Программа ипотеки
Стоимость жилья, ₽
Первый взнос, ₽
Срок кредита
от 5.75%
Ставка
от 163 568 ₽
Платеж в месяц
Расчёт носит информационный характер и не является публичной офертой
Предложите свою цену
26 000 000 ₽
143 172 ₽/м²
























