Купить дом на улице Западная в Московской области
Россия, Московская область, городской округ Мытищи, посёлок Вешки, Западная улица, 5
324.95 м²
Площадь дома
10 сот
Площадь участка
Блочный
Материал постройки
2
Этажей
Описание
О доме:
Монолитный железобетонный каркас, стены выполнены из газоблоков.
Фундамент — утепленная Шведская плита (УШП), утеплена отмостка по периметру. Срок службы 100 лет.
Окна RЕНАU, двойной энергосберегающий стеклопакет, профиль 70мм. Окно Второй свет — алюминиевый профиль до потолка. Фасад — термопанели (80мм ППС с керамической плиткой). Плоская, эксплуатируемая мембранная кровля, на которой установлены натуральные гранитные плиты 600х600 мм, толщиной 30 мм. Площадь кровли + 120 кв.м.
Гранитные парапеты по периметру крыши. В общей сложности около 12 тонн гранита. Сливная система крыши встроена внутрь дома и выведена в дренаж. Балкон 25 кв.м., пол балкона выполнен из натурального гранита. Парапеты из натурального гранита. Сливная система выполнена из алюминиевых труб, врезанных в дренажную систему.
Электровыключатели на улице встроены в стену дома. Выведены провода для установки электрических ворот и светильников на забор. Внутри дома: Бетонная лестница, покрытая натуральным гранитом толщиной 20мм. На лестнице между первым и вторым этажом цельный гранитный слэб без швов, весом около 200 кг. Стены и двери подготовлены под декоративную штукатурку.
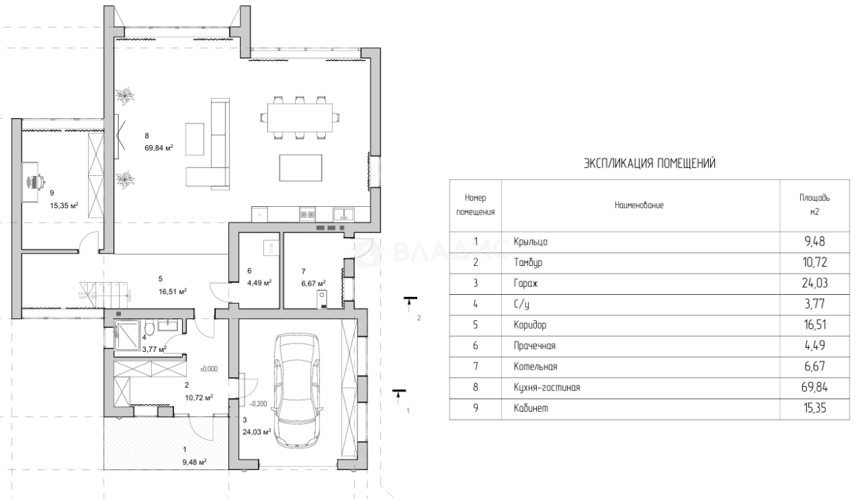
Планировка: 1 этаж - прачечная, котельная, кухня-гостиная, кабинет, с/у, терраса. 2 этаж - 4 спальни, из них мастер блок с с/у и гардеробной, 2 гардеробной, с/у, кладовая.
Превосходная локация для постоянного проживания в комфорте и загородном уюте вблизи Москвы. Станьте владельцем истинной ценности.
Просмотры по предварительной записи.
О доме
Год постройки
2025
Этажей в доме
2
Общая площадь
324.95 м²
Жилая площадь
135 м²
Площадь кухни
70 м²
Материал постройки
Блочный
Материал перекрытий
Ж/б плиты
Материал кровли
Металлочерепица
Высота потолков
3 м
Совмещенных санузлов
3
Об участке
Площадь участка
10 сот.
Статус участка
Индивидуальное жилищное строительство
Электричество
Есть
Газ
Есть
Водоснабжение
Есть
Канализация
Есть
Гараж
Есть
Подъезд к участку
Асфальт
Расположение
Россия, Московская область, городской округ Мытищи, посёлок Вешки, Западная улица, 5
Ипотечный калькулятор
Заполните 1 анкету — получите предложения от десятков банков на специальных условиях
Программа ипотеки
Стоимость жилья, ₽
Первый взнос, ₽
Срок кредита
от 5.75%
Ставка
от 496 995 ₽
Платеж в месяц
Расчёт носит информационный характер и не является публичной офертой
Предложите свою цену
79 000 000 ₽
243 114 ₽/м²







