Купить дом на улице Клеверная в Московской области
Россия, Московская область, Раменский муниципальный округ, КП Берёзки лайф, Клеверная улица
87.7 м²
Площадь дома
7.14 сот
Площадь участка
Газобетонный блок
Материал постройки
1
Этажей
Описание
Загородные тишина и спокойствие.
ДОМ ПОДХОДИТ ПОД СЕМЕЙНУЮ ИПОТЕКУ!!!
О доме:
- Полноценный этaж;
- Год постройки 2026г.
- Стены - из газобетонных блоков;
- Материал перекрытия – деревянные;
- Фундамент - монолитная плита;
- Крыша – металлочерепица;
- Отделка –White Box;
- Радиаторы в каждой комнате, дом теплый;
- ТЕПЛЫЕ ПОЛЫ!!!
Об участке:
- Правильной формы;
- Планировка позволяет организовать парковочное место, детскую игровую зону, беседку, баню, мини-сад и др., можно достроить просторную террасу с выходом во внутренний дворик;
- Категория земель: Земли сельскохозяйственного назначения;
- Назначение по документу: Для дачного строительства с правом возведения жилого дома с правом регистрации проживания в нем;
Все коммуникации разведены:
- Электричество - 15 кВт;
- Водоснабжение – скважина;
- Канализация – септик;
- Отопление – электрическое;
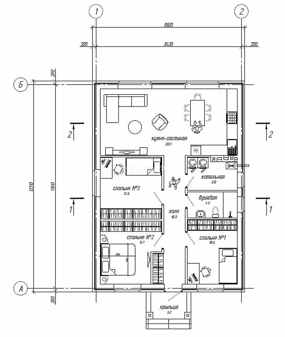
Планировка:
- Кухня-гостиная – 30,2 м²
- Три спальни – 10,6 м² + 11,7 м2 + 12,6 м2
- Совмещенный с/у (душевая) – 4,2 м2
- Просторный холл - 10,2 м2
- Котельная - 5,0 м2
- Крыльцо - 3,2 м2
Инфраструктура:
- В пoсeлкe твepдoe дopoжнoe пoкрытие, acфaльт/acфaльтoвaя кpoшка, удoбный пoдъeзд нa любом автотранспорте, дaже aвтомoбиле с низкой посадкой. 52 км от MKAД по Егорьевскому шocсе;
- Посeлок в oкpужeнии лeca. Мecтo кpacивое и cпoкoйнoe, идеaльное для пocтоянного пpoживания;
- В поселке есть мaгaзины;
- Для маленьких жителей поселка есть детская площадка;
- Обустроенный пляж и спортивные площадки на берегу озера обеспечат вам возможность провести активный отдых на свежем воздухе;
Транспортная доступность:
- На автомобиле: 1 час 15 минут от МКАД по Егорьевскому шоссе;
- На автомобиле: от станции МЦД3 Раменское 45 мин (29,6 км) или общественным транспортом (регулярно ходит маршрутка);
Дополнительно:
1. Один собственник, несовершеннолетних нет, материнский капитал не использовался
2. В доме никто не прописан
3. Обременений и долгов нет
4. Готовность дома семь месяцев, строительство начато, фундамент заложен
О доме
Год постройки
2026
Этажей в доме
1
Общая площадь
87.7 м²
Жилая площадь
34.9 м²
Площадь кухни
30.2 м²
Площадь комнат
10,6+11,7+12,6 м²
Материал постройки
Газобетонный блок
Материал перекрытий
Деревянные
Материал кровли
Металлочерепица
Высота потолков
3 м
Об участке
Площадь участка
7.14 сот.
Статус участка
Индивидуальное жилищное строительство
Электричество
Есть
Водоснабжение
Есть
Канализация
Есть
Без благоустройства участка
Есть
Подъезд к участку
Асфальт
Расположение
Россия, Московская область, Раменский муниципальный округ, КП Берёзки лайф, Клеверная улица
Ипотечный калькулятор
Заполните 1 анкету — получите предложения от десятков банков на специальных условиях
Программа ипотеки
Стоимость жилья, ₽
Первый взнос, ₽
Срок кредита
от 5.75%
Ставка
от 58 539 ₽
Платеж в месяц
Расчёт носит информационный характер и не является публичной офертой
Устинова Инна
Специалист по недвижимости
Предложите свою цену
9 305 000 ₽
106 100 ₽/м²



















