Купить дом в Московской области
Россия, Московская область, Дмитровский муниципальный округ, СНТ Иволга, 2
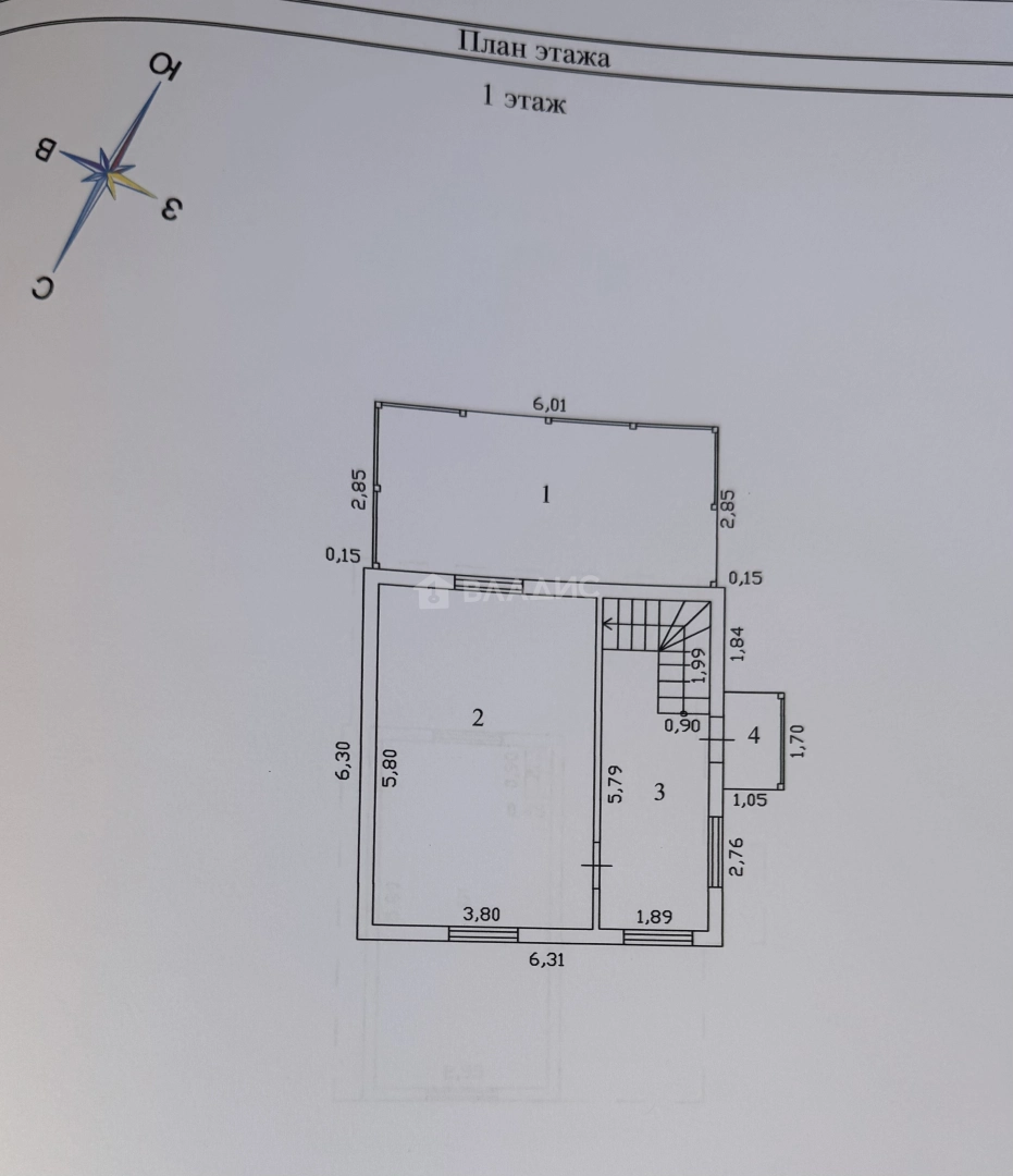
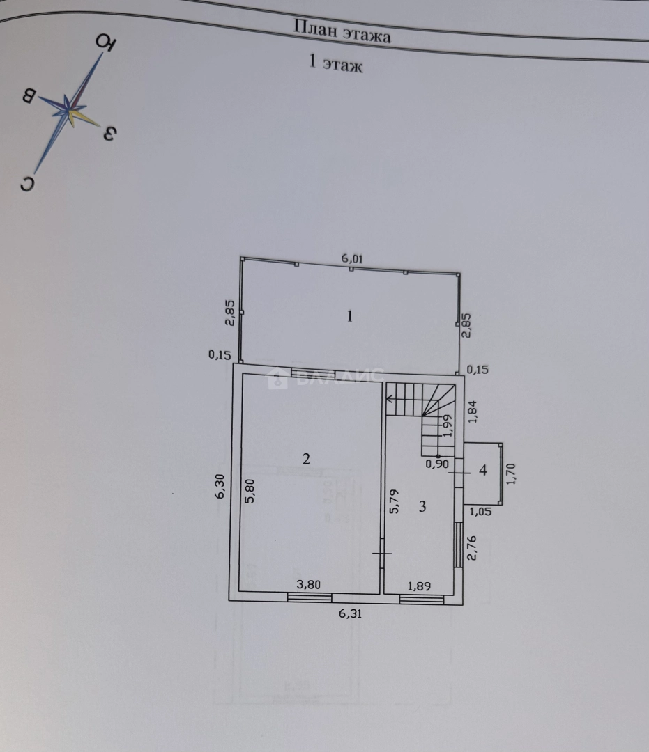
60 м²
Площадь дома
8.7 сот
Площадь участка
Брус
Материал постройки
2
Этажей
Описание
Фундамент cвайно-блoчный размерами 8 м х 6 м, стены из бруса 150х150, в 2023 г. снаружи обшит сайдингом и цокольными панелями Dоke и утеплен мин.ватoй Roсkwоll(50 мм), паpo-,влагo-,вeтрoзaщита Изоcпан, установлены cнeгодepжатели, водосточные желобы и трубы. В доме две просторные комнаты, кухня, прихожая, открытая веранда 6 м х 2 м. Окна пластиковые Rеhаu 3ной стеклопакет с москитными сетками, входная дверь металлическая, утепленная. Отопление печь-камин(греет оба этажа). Внутренняя отделка вагонка. На участке:колодец 16 колец,в нем отличный автоматический насос Grundfоs(производство Италия) мощностью выброса до 50 м, бесперебойный запас воды, парковка на 2 машиноместа, хозблок для хранения садового инвентаря, уличный туалет, 2 небольших дровника вмещающие 4-5 кубов. Баня 6м х 2,5м из бруса 150 х 100 построенная в 2022 г. из новгородского леса г.Пестово, фундамент - железные сваи 6 шт, с 3мя отделениями - парная, помывочная и комната для отдыха. Электричество 15 кВт заведено в дом, баню, хозблок. Сельский тариф на оплату электроэнергии. Участок прямоугольной формы, с небольшим естественным уклоном, огорожен со всех сторон. Спереди забор из профнастила с калиткой и распашными воротами, с 3х сторон сетка-рабица, дорожки из плитки. На участке туи, плодово-ягодные насаждения (яблони, груша, слива, вишня, красная и черная смородина, крыжовник, черноплодная, малина).
На въезде в СНТ откатные ворота с пульта, дороги асфальтированные, удобный подъезд к участку, детская площадка. Доброжелательные соседи. Напротив участка выход в лес к самым грибным и ягодным местам.
Круглогодичный подъезд, рядом продуктовый магазин, остановка общественного транспорта, святой источник-Святогорово. Недалеко пруд для купания. В 10 мин езды на машине Жестылевское водохранилище -рыбалка, купание, активный отдых на воде. Отличное место для отдыха с семьёй на природе. Прямая продажа,2 взрослых собственника.
Приезжайте посмотрите и оцените сам объект и красоту природы вокруг, тишину и спокойствие.
Звоните и договоримся о просмотре!
О доме
Год постройки
2022
Этажей в доме
2
Общая площадь
60 м²
Жилая площадь
40 м²
Площадь кухни
8 м²
Площадь комнат
22+18 м²
Материал постройки
Брус
Материал перекрытий
Деревянные
Материал кровли
Металлочерепица
Раздельных санузлов
1
Об участке
Площадь участка
8.7 сот.
Статус участка
Садоводство
Электричество
Есть
Баня
Есть
Подъезд к участку
Щебенка
Расположение
Россия, Московская область, Дмитровский муниципальный округ, СНТ Иволга, 2
Ипотечный калькулятор
Заполните 1 анкету — получите предложения от десятков банков на специальных условиях
Программа ипотеки
Стоимость жилья, ₽
Первый взнос, ₽
Срок кредита
от 5.75%
Ставка
от 18 245 ₽
Платеж в месяц
Расчёт носит информационный характер и не является публичной офертой
Предложите свою цену
2 900 000 ₽
48 333 ₽/м²














































