Купить дом в Московской области
Россия, Московская область, Наро-Фоминский городской округ, деревня Жёдочи, 32
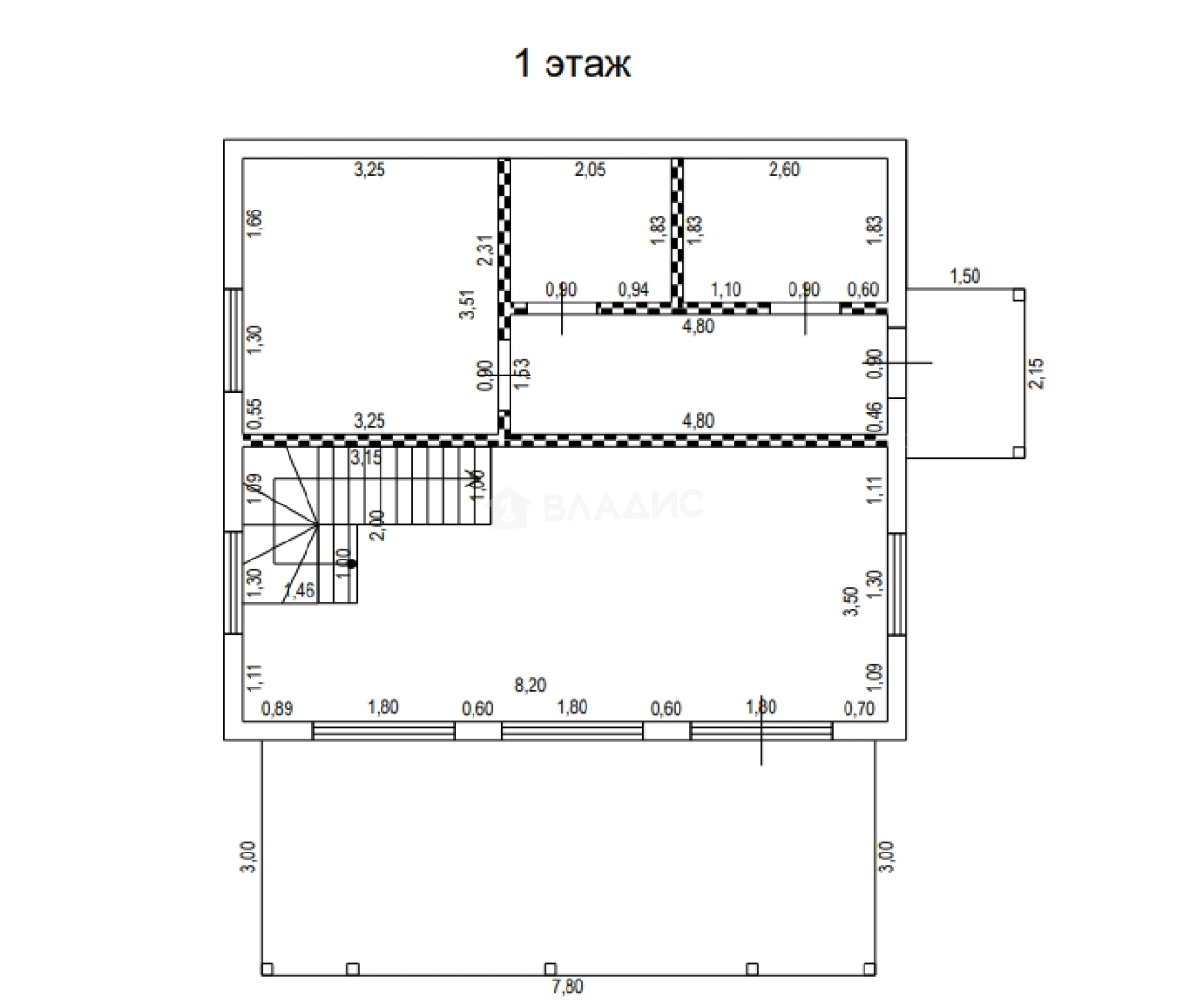
131 м²
Площадь дома
6 сот
Площадь участка
Деревянный
Материал постройки
2
Этажей
Описание
Уникальный проект с панорамными окнами, вторым светом и 8-метровыми потолками. Дом построен в 2024 году с применением передовых технологий и материалов.
Архитектура и планировка:
3 спальни, 2 санузла, кухня-гостиная с вторым светом.
Веранда 33 м² с интегрированными соснами — единение с природой.
Высокие окна Rehau с энергоэффективным напылением.
Коммуникации и инженерия:
Электричество 20 кВт, водоснабжение от колодца, канализация.
Система тёплого пола Stout с интеграцией в стяжку.
Фундамент: свайно-бетонный. Каркас: брус 200×200 мм.
Утепление: кровля и пол — 200 мм.
Входная дверь с терморазрывом.
Отделка и экстерьер:
Фасад: планкен + Granline 44 Profit (цвет RAL 7024).
Участок и локация:
Участок 6 соток в статусе «Садоводство».
Окружение: лесная зона с белочками, грибами, земляникой.
Идеально для уединенного отдыха в гармонии с природой.
Дом готов к финишной отделке — возможность создать пространство под ваш вкус!
Ценителям архитектуры и качества — уникальное предложение!
О доме
Год постройки
2024
Этажей в доме
2
Общая площадь
131 м²
Жилая площадь
66 м²
Площадь кухни
20 м²
Площадь комнат
22+22+22 м²
Материал постройки
Деревянный
Материал перекрытий
Деревянные
Материал кровли
Отсутствует
Раздельных санузлов
1
Об участке
Площадь участка
6 сот.
Статус участка
Садоводство
Электричество
Есть
Водоснабжение
Есть
Канализация
Есть
Без благоустройства участка
Есть
Расположение
Россия, Московская область, Наро-Фоминский городской округ, деревня Жёдочи, 32
Ипотечный калькулятор
Заполните 1 анкету — получите предложения от десятков банков на специальных условиях
Программа ипотеки
Стоимость жилья, ₽
Первый взнос, ₽
Срок кредита
от 5.75%
Ставка
от 80 841 ₽
Платеж в месяц
Расчёт носит информационный характер и не является публичной офертой
Предложите свою цену
12 850 000 ₽
98 092 ₽/м²











