Купить дом в Московской области
Россия, Московская область, муниципальный округ Истра, КП Русская деревня
850 м²
Площадь дома
15 сот
Площадь участка
Кирпичный
Материал постройки
4
Этажей
Описание
Отделка фасада дома сделана из натурального камня.
В подвале толщина стен 600 мм, из монолитного бетона, можно сделать при желании бункер.
Полностью выполнена гидроизоляция стен с наружи и внутри. Цокольный этаж абсолютно сухой.
Материал стен porotherm Wienerberger, фасад снаружи отделан натуральным камнем
При проектировании дома заложена возможность свободной планировки 1 и 2 этажа. При желании почти все перегородки можно перенести.
Все коммуникации ценртальные. В дом заведен газ, электричество, вода, канализация.
В котельной стоит газовый котел, подключен и введен в эксплуатацию.
Площадь участка позволяет построить любые дополнительные строения, такие как бассейн, зону барбекю и т.д.
Инфраструктура: в непосредственной близости, есть все необходимое для комфортной жизни, магазины, детские сады, школы.Муниципальные а также частные. Аутлет Новая Рига, место для любимых покупок.В пяти минутах расположился спортивный комплекс от Сбер университет.
по технической части дом полностью выполнен по ГОСТУ.
Дом новый в нем никто не жил
Данный коттедж предоставляет вам полную свободу для творчества в плане отделки и коммуникаций площадью 850 м2.
Поселок элитный обжитой 90% жителей живут постоянно. Предусмотрены прогулочные зоны.Детские площадки. Рядом с въездом находится магазин,пунтк приема Вайлдберриз,цветочный.
Имеется выход в лесную часть.
Звоните прямо сейчас. Помощь в одобрении ипотеки.
О доме
Год постройки
2023
Этажей в доме
4
Общая площадь
850 м²
Жилая площадь
161.25 м²
Площадь кухни
20.13 м²
Площадь комнат
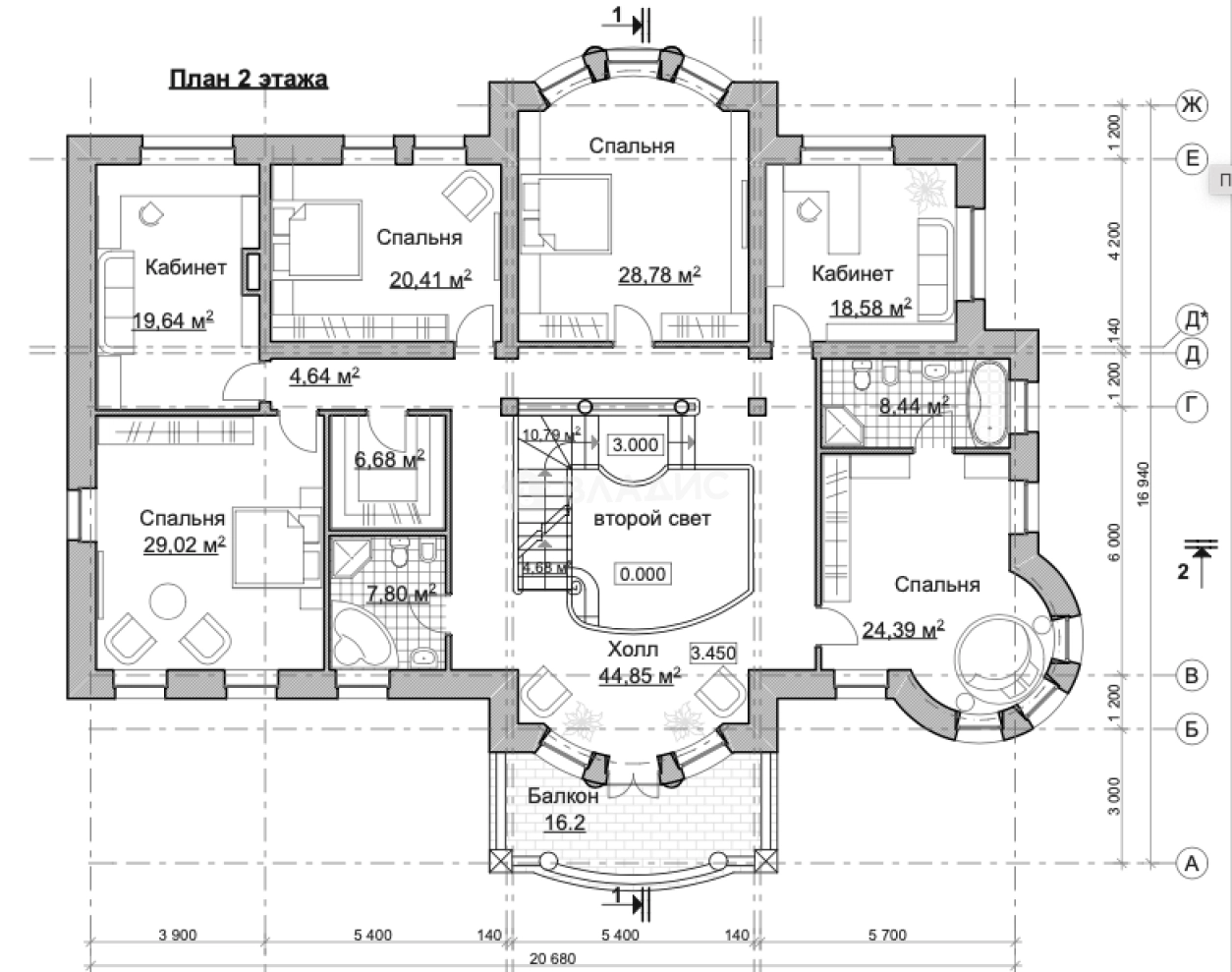
19.64+29.02+20.41+28.78+ 18.58+24.39+20.43 м²
Материал постройки
Кирпичный
Материал перекрытий
Монолитные
Материал кровли
Мягкая черепица
Высота потолков
3.5 м
Об участке
Площадь участка
15 сот.
Статус участка
Индивидуальное жилищное строительство
Электричество
Есть
Газ
Есть
Водоснабжение
Есть
Канализация
Есть
Охрана
Есть
Подъезд к участку
Асфальт
Расположение
Россия, Московская область, муниципальный округ Истра, КП Русская деревня
Ипотечный калькулятор
Заполните 1 анкету — получите предложения от десятков банков на специальных условиях
Программа ипотеки
Стоимость жилья, ₽
Первый взнос, ₽
Срок кредита
от 5.75%
Ставка
от 943 660 ₽
Платеж в месяц
Расчёт носит информационный характер и не является публичной офертой
Михайлов Рафаил
Главный эксперт по недвижимости
Предложите свою цену
150 000 000 ₽
176 471 ₽/м²






















